


129 901 ₽/м²
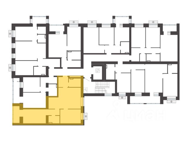
В новом жилом комплексе комфорт-класса "Знак" продается 2-комнатная квартира площадью 66.00 кв. м с отделкой white box. Квартира находится на 6 этаже 8-этажного корпуса 1. Девелопер проекта - федеральный застройщик "Железно". "Знак" - начало добрых перемен. Это жилой комплекс, где всё складывается правильно. Перемены появляются там, где для них создана среда. Когда парк под окнами, а не на другом конце города. Когда коворкинг рядом, и можно сосредоточиться, не уезжая в центр. Когда во дворе - площадки для тренировок, йоги, движения. "Знак" - как символ решений, которые привели к лучшему. Знаковое место Здесь вас ждут оживлённые площади, наполненные событиями и городским ритмом, и уютные бульвары для неспешных прогулок. Для ценителей тишины и созерцания найдутся уединённые уголки, а поклонников активного образа жизни ждут современные и технологичные спортивные площадки. Архитектура как знак качества Жилой комплекс "Знак" состоит из 6 секций высотой 7-8 этажей, лаконичный ансамбль которых окружает внутренний зеленый двор с местами для отдыха жителей. Природные материалы - древесина, камень, - натуральные оттенки земли и травы усиливают гармонию с природой. Комбинированный вентилируемый фасад, прочный кирпичный фундамент, большие окна с 2-камерными стеклопакетами и 5-камерным ПВХ-профилем гарантируют долгий срок эксплуатации, тишину и благоприятный микроклимат в каждой квартире. Лобби: искусство, в котором живут Продуманное пространство с мягкими креслами и камерными зонами отдыха создаёт атмосферу уюта, где искусство становится частью повседневности. Это вдохновляющая среда, которая пробуждает чувства и воображение с первого взгляда. Дизайн лобби воплощает концепцию эмоций в искусстве через пластику и форму. Доминантой становятся выразительные гипсовые барельефы в виде масок, объемность которых подчеркивает многоуровневое освещение. В отделке гармонично сочетаются натуральные материалы: металл контрастирует с тёплым гипсом, а керамогранит - с текстильными панно в зонах отдыха. О застройщике "Железно" - федеральный девелопер со смыслом, создающий умные мини-города с развитой инфраструктурой и высоким уровнем сервиса. За 14 лет беспрерывного развития и стремительного роста компания точно определила своё предназначение: мы с любовью и уважением к человеку создаём города будущего, меняя мир и жизнь людей к лучшему. • 6 городов России: Киров, Ижевск, Ульяновск, Екатеринбург, Пермь, Волгоград. • Строим парки, школы и детские сады. • Земельный банк более 2 000 000 м2. • ТОП-4 застройщиков России по качеству жилья (ЕРЗ.рф от июня 2025). • 28 проектов. • 6-кратные победители и 25-кратные финалисты премии Urban Awards. 2-комнатная квартира с двумя санузлами в республике Удмуртская.


































































































































