


112 796 ₽/м²
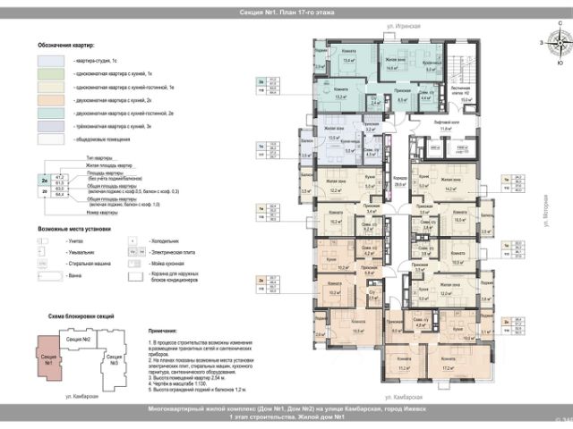
Продаётся 2-комнатная квартира в сданном доме (Союзная, 8Б (Дом 1)), срок сдачи: III-кв. 2025, общей площадью 56.7 кв.м., на 1 этаже. Квартира от застройщика КОМОССТРОЙ. Покупка защищена ФЗ 214 с использованием эскроу счетов. Финский квартал - новый жилой комплекс в Устиновском районе Ижевска. Он расположен в уютном и спокойном месте, вблизи Ярушкинского парка, сразу за торговым центром МЕТРО. Это 9 жилых домов с красивыми и безопасными дворами без машин, продуманными до мелочей семейными планировками, собственной прогулочной аллеей, множеством зелени и просто огромной парковкой! Изюминка жилого комплекса - Зелёная Аллея площадью 4504 кв.м! Это прекрасное место для утренней пробежки, где все негативные мысли отходят на второй план, или для легкой вечерней прогулки в теплом свете фонарей. Для удобства автомобилистов, на территории жилого комплекса мы предусмотрели множество открытых парковочных мест. Помимо них, в границах участка, будет обустроена платная парковка. Квартира: До передачи квартиры собственнику, мы выполняем в ней все капитальные и грязные работы. Стены подготавливаем под оклейку обоями. На полу выполняем полусухую стяжку со звукоизолирующей прослойкой. В квартирах комплекса предусмотрена горизонтальная поквартирная разводка труб отопления, выполненная в конструкции пола. В каждой комнате мы устанавливаем стильные стальные панельные радиаторы с нижней подводкой. Это удобно и эстетично! Громоздкие стояки не будут портить ваш интерьер. В каждой квартире устанавливаем клапаны приточной вентиляции, оснащённые системами шумоизоляции и фильтрации воздуха. Они обеспечивают оптимальный режим притока свежего воздуха в помещение. Устанавливаем надежные металлические входные двери с тепло- и звукоизоляцией. Выполняем прокладку электросетей, устанавливаем электросчетчики, одну розетку и один выключатель в прихожей. По дополнительному соглашению мы можем выполнить в вашей квартире чистовую отделку по нашему типовому проекту. В Финском квартале мы реализуем новый, расширенный пакет системы Умный Дом: - Бесключевой доступ в подъезд - Видеодомофон с функцией Face ID - Видеонаблюдение - Автоматизированный сбор и передача показаний счётчиков Управлять всеми функциями умного дома можно будет с помощью мобильного приложения жильца. Все вопросы можно уточнить в отделе продаж по телефону, указанному в объявлении. Звоните! 2-комнатная квартира в микрорайоне Аэропорт в городе Ижевск.





























































































































