


123 188 ₽/м²
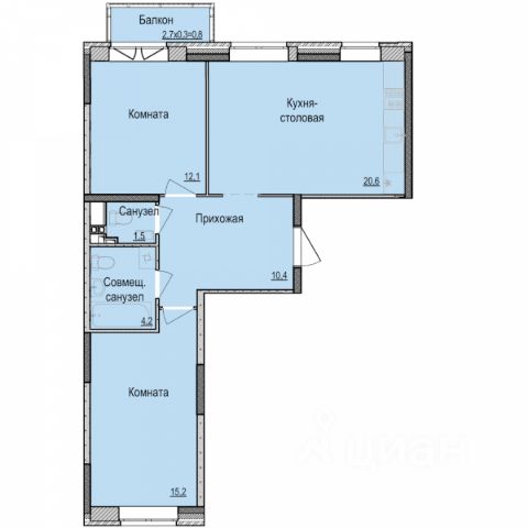
Жилой дом "Гравитация" - притягивает с первого взгляда. ИНФРАСТРУКТУРА Дом расположен в Индустриальном районе города на улице Серова (жилой район Культбаза). Всё самое важное рядом: - детские сады, - школы/ лицеи, - поликлиника и медцентры, - парк "Березовая роща", - торговый центр "Флагман", "Мой порт", "Аврора-парк" и др. - строительный гипермаркет "Гвоздь" и др. КВАРТИРОГРАФИЯ В планировках квартир мы учитывали разные сценарии жизни и запросы к жилью. Все продуманно для вашего жизненного пространства. Отсутствие острых углов и нефункциональных выступов. ПАРКИНГ Жителям комплекса не придется волноваться за сохранность своих автомобилей. В жилом комплексе предусмотрен закрытый, охраняемый подземный паркинг, доступ в который возможен прямо с вашего этажа. КЛАДОВЫЕ Мы предусмотрели для вас помещения различной площадью от маленьких и компактных до полноценных кладовых. Теперь вам не придется загружать жилое пространство ненужными вещами. УЮТНЫЕ ЗОНЫ На территории двора и в холле дома расположены различные уютные зоны по типу коворкинга, где можно поработать, почитать или посидеть с друзьями. ЛИФТЫ Скоростные и безопасные. Современные и бесшумные. Комфортные и просторные. ДВОР Камерный двор, огороженный по периметру забором, расположен на стилобате и скрыт от постороннего взгляда. Уютные, зеленые уголки, сформированные с помощью декоративных кустарников, создадут атмосферу приватности. Отличное место, чтобы отдохнуть после рабочего дня, помедитировать или заняться йогой. спокойный район отсутствие крупных транспортных развязок огороженная и приватная территория двора лаконичные фасады входные группы на уровне земли двор без машин система видеонаблюдения современное благоустройство придомовой территории качественные материалы улучшенная предчистовая отделка увеличенная высота потолков система "Умный Дом" дизайнерские холлы панорамное остекление современные бесшумные лифты до паркинга просторные кладовые коммерческие помещения квартиры с авторскими планировками охраняемый паркинг наземная парковка 3-комнатная квартира с балконом в районе Индустриальный в городе Ижевск.


















































































