


168 800 ₽/м²
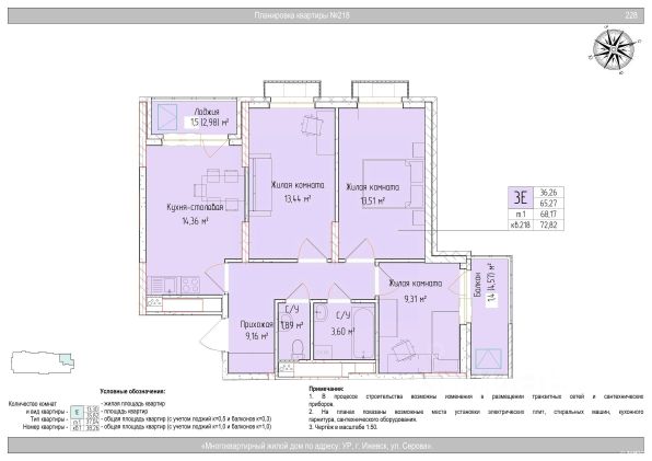
Дом большого города Монблан- это сданный дом бизнес-класса, расположенный в сердце Ижевска на кольце улиц Удмуртской и К.Либкнехта. Вся городская инфраструктура в шаговой доступности. Дом сдан! Условия приобретения: 1. Скидка при 100% оплате ( СИ, IT- без субсидирования) 2. Субсидированная ипотека от 3,5% 3.Ипотека с ПВ от 10% Стоимость УКАЗАНА БЕЗ СКИДКИ. Преимущества дома: -Просторный функциональный холл и бесшумные лифты; -наземный и подземный паркинг с автоматизированной системой доступа; -приватная благоустроенная придомовая зеленая территория с зонами для отдыха и детской площадкой. Технологические решения: 1.Витражное остекление 2.Ниши для кондиционеров 3.Наружные и межквартирные стены из красного керамического кирпича и окна с шестикамерным профилем - для повышенной звукоизоляции 4.Усиленная звукоизоляции пола 5. Приточная вентиляция с фильтрами предварительной очистк Безопасность: 1.Огороженная территория с системой видеонаблюдения по периметру дома и во дворе и зоной консьержа внутри дома 2. Автоматическая передача показаний счетчиков. 3. Подводка интернет кабеля и ТВ-кабеля в квартиру. Продам 4-комнатную квартиру на улице Карла Либкнехта в городе Ижевск.













































































