


143 726 ₽/м²
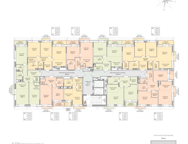
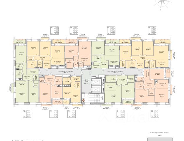
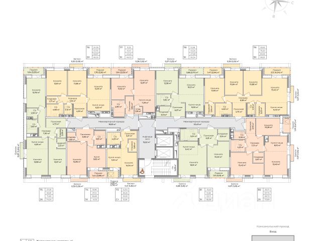
Квартал героев Леонов, Дом 1- это семейный квартал, расположенный в центральном районе г. Ижевска, на пересечении улиц Пушкинской и В. Чугуевского. Удобная транспортная развязка позволит за 7 минут добраться до Центральной площади, сходить в Цирк или прогуляться в "Летнем саду". В шаговой доступности вся инфраструктура центра города, продуктовые магазины, аптеки, мед. учреждения, автосервисы, кафе, рестораны, эко-рынки, образовательные и развлекательные учреждения: ВкусВилл, Школа 91, Спорт.клуб "Проформа", Школа 97, Школа искусств 9, Дом Дружбы народов, ЗАГС, Гастроном, Лингвистический Лицей 25, Цирк, Шахматный клуб, Школа юных летчиков, Бассейн "Сила воды", Стадион "Динамо", Михайловский собор, Летний сад, Стелла "Навеки с Россией", Гуманитарный лицей 30, Центральная площадь. Квартал героев Леонов единственный в своем роде проект квартальной застройки в микрорайоне "Ю-2". Мы включили в него закрытый внутренний двор без машин, огороженный с трех сторон домами, парковочные места вынесены за периметр двора, отсутствие шума от дороги за счет того, что дома не примыкают непосредственно к проезжей части. 17-этажное трехсекционное здание дома позволяет своим жителям уже со средних этажей любоваться панорамными видами из своих окон. Преимущества дома: Парадный холл в стильной благородной отделке и понятной навигацией. Колясочные для хранения колясок и спортивного инвентаря вне квартиры. Велопарковки организованы у каждого подъезда. Места для консьержа в каждой секции для организации чистоты и порядка. Сквозные подъезды для удобства захода в здание и изнутри двора и со стороны улицы. Просторные и бесшумные лифты по два в каждом подъезде для быстрой и бесперебойной работы. Обустройство придомовой территории: Для маленьких детей: качели, песочница, батуты. Для детей постарше: велосипедная дорожка, спортивная площадка, зимой хоккейная площадка. Для взрослых: пергола зона с шезлонгами и скамьями для отдыха. Для всех возрастов: пешеходные дорожки, газоны, клумбы, ель в центре двора. Технологические решения: Теплое панорамное остекление лоджий с двухкамерными стеклопакетами. Увеличенные окна с пятикамерным профилем. Надежная металлическая входная дверь с проверенной фурнитурой. Корзины для кондиционеров для единого стиля фасада. Толстые наружные стены (кирпичные стены с фасадным утеплением). Полусухая стяжка пола. Трубы с пониженным уровнем шума Безопасность: Система видеонаблюдения по периметру квартала и во дворе. Видеодомофоны. Огороженная территория квартала. Зона консьержа. Противопожарная система (пожарные датчики, дымоудаление). Предусмотрена предчистовая или чистовая отделка квартиры современными материалами в светлых тонах. Срок ввода в эксплуатацию IV кв. 2025г. Условия приобретения: ФЗ-214 (с эскроу-счетом) Скидка при 100% оплате Все виды ипотеки Квартал Леонов представляет собой воплощение лучших современных стандартов жилья комфорт-класса, гармонично вписывается в сложившуюся городскую архитектуру и развивает террит
































































































































































