


156 325 ₽/м²
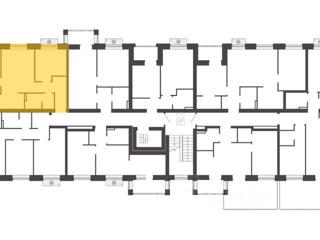
Продаётся студия в сданном доме (Дом 17), срок сдачи: I-кв. 2025, общей площадью 23.6 кв.м., на 1 этаже. Объявление от застройщика КОМОССТРОЙ. Покупка защищена ФЗ 214 с использованием эскроу счетов. Город Оружейников расположен вдоль улицы Берша, на границе Завьяловского района и города Ижевска. Центральный бульвар - изюминка жилого комплекса Город Оружейников. Это огромное пространство - целых 2,37 Га жилой среды, внутри которой мы разрабатываем множество сценариев досуга и отдыха будущих жителей! Пешеходная зона протяженностью свыше 1000 метров! Для создания комфортной атмосферы, вдоль всего пешеходного маршрута мы высаживаем настоящие сады с молодыми деревьями, декоративными кустарниками и многолетними цветами. А ещё, устанавливаем удобные деревянные скамейки и перголы, на которых можно будет с комфортом передохнуть во время долгой прогулки. На территории бульвара предусмотрено наличие множества коммерческих помещений. В них могут быть организованы уютные кафе с летними верандами, небольшие магазинчики, пункты проката велосипедов и электросамокатов. Целых 3569 метров беговых и велодорожек! Здесь можно гулять и заниматься спортом. И не нужно никуда ехать! Выйти на утреннюю пробежку или покататься на велосипеде после работы вы сможете прямо внутри своего жилого комплекса. Нужно только выйти из дома! Для любителей экстрима, прямо на территории бульвара мы установим рампу и памп-трек. Квартира: Высота потолков в квартире - 2,6 метра и увеличенными оконными проемами. Высота подоконника составит - всего 70 см от пола, благодаря чему в квартире всегда будет много света, тепла и уюта. Окна, выходящие на балконы, предусмотрены панорамными, практически от уровня пола. До передачи собственнику, в квартире мы выполняем все капитальные и грязные работы. Поверхности стен из керамзитобетонного блока и бетона штукатурим сухими смесями. На гипсокартонных стенах шпаклюем стыки. Вам остается только поклеить обои по вашему вкусу. На полу выполняем полусухую стяжку из цементно-песчаного раствора с фиброармированием для обеспечения вертикальной звукоизоляции. Устанавливаем надежные металлические входные двери. Для обеспечения тепло и звукоизоляции полости двери и дверной коробки заполняются негорючим минеральным утеплителем. Выполняем прокладку электросетей, устанавливаем электросчетчики. Устанавливаем счетчики воды с импульсным выводом. Окна выполняем из ПВХ-профиля с энергосберегающей оконной конструкцией. Для создания комфортной атмосферы, в квартирах мы устанавливаем клапаны приточной вентиляции с системой фильтрации воздуха. По дополнительному соглашению мы можем выполнить в вашей квартире чистовую отделку по нашему типовому проекту. Специально для удобства наших клиентов мы подготовили к показу демонстрационный этаж. Прогуляться по квартирам на демо-этаже, оценить качество строительных материалов и выбрать понравившуюся планировку вы можете записавшись на посещение, нажав на кнопку "Записаться на просмотр" в объявлении.








































































