Мы используем куки-файлы. Соглашение об использовании
Общая площадь61,06 м²
Этаж12 из 17
Год сдачи2025
ДомСдан
ОтделкаС отделкой
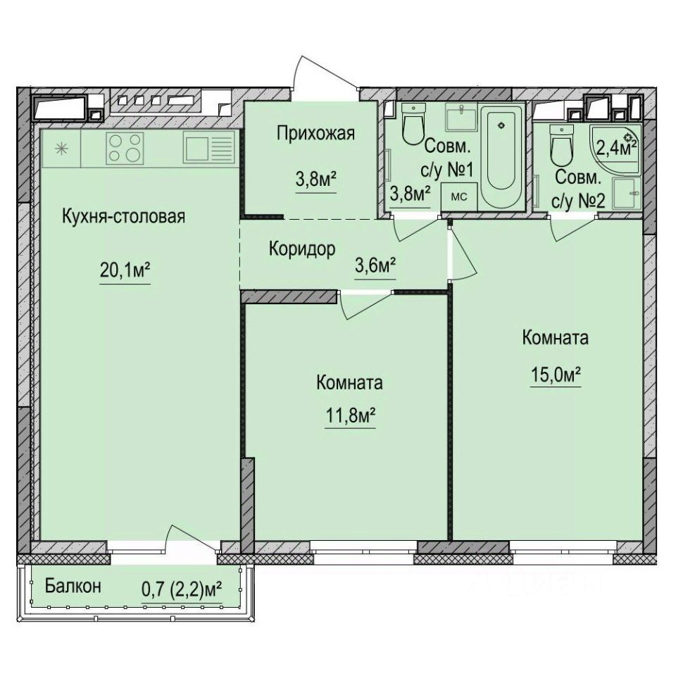
Продаётся 2-комнатная квартира в сданном доме (Союзная, 8Б (Дом 1)), срок сдачи: III-кв. 2025, общей площадью 61.2 кв.м., на 12 этаже. Квартира от застройщика КОМОССТРОЙ. Покупка защищена ФЗ 214 с использованием эскроу счетов. Финский квартал - новый жилой комплекс в Устиновском районе Ижевска. Он расположен в уютном и спокойном месте, вблизи Ярушкинского парка, сразу за торговым центром МЕТРО. Это 9 жилых домов с красивыми и безопасными дворами без машин, продуманными до мелочей семейными планировками, собственной прогулочной аллеей, множеством зелени и просто огромной парковкой! Изюминка жилого комплекса - Зелёная Аллея площадью 4504 кв.м! Это прекрасное место для утренней пробежки, где все негативные мысли отходят на второй план, или для легкой вечерней прогулки в теплом свете фонарей. Для удобства автомобилистов, на территории жилого комплекса мы предусмотрели множество открытых парковочных мест. Помимо них, в границах участка, будет обустроена платная парковка. Квартира: До передачи квартиры собственнику, мы выполняем в ней все капитальные и грязные работы. Стены подготавливаем под оклейку обоями. На полу выполняем полусухую стяжку со звукоизолирующей прослойкой. В квартирах комплекса предусмотрена горизонтальная поквартирная разводка труб отопления, выполненная в конструкции пола. В каждой комнате мы устанавливаем стильные стальные панельные радиаторы с нижней подводкой. Это удобно и эстетично! Громоздкие стояки не будут портить ваш интерьер. В каждой квартире устанавливаем клапаны приточной вентиляции, оснащённые системами шумоизоляции и фильтрации воздуха. Они обеспечивают оптимальный режим притока свежего воздуха в помещение. Устанавливаем надежные металлические входные двери с тепло- и звукоизоляцией. Выполняем прокладку электросетей, устанавливаем электросчетчики, одну розетку и один выключатель в прихожей. По дополнительному соглашению мы можем выполнить в вашей квартире чистовую отделку по нашему типовому проекту. В Финском квартале мы реализуем новый, расширенный пакет системы Умный Дом: - Бесключевой доступ в подъезд - Видеодомофон с функцией Face ID - Видеонаблюдение - Автоматизированный сбор и передача показаний счётчиков Управлять всеми функциями умного дома можно будет с помощью мобильного приложения жильца. Все вопросы можно уточнить в отделе продаж по телефону, указанному в объявлении. Звоните!

О квартире

Тип жилья

Новостройка

Общая площадь

61,06 м²

Высота потолков

2,6 м

Отделка

С отделкой

О доме

Количество лифтов

3 пассажирских, 3 грузовых

Тип дома

Монолитно-кирпичный

Понравилась квартира — узнайте о ней больше

Застройщик ответит на все вопросы

Варианты отделки в ЖК

  • Чистовая
  • Предчистовая

3D-тур

Посмотрите 3D-тур, чтобы оценить объект
Похоже на то, что вы ищете?

Акции в ЖК «Финский квартал»

Узнайте про персональные условия и дополнительные скидки при покупке квартиры у застройщика
logo

Скидка 5%

Выгодно

Материнский капитал

Ипотечный калькулятор
  • Базовая
  • Семейная
  • ИТ-ипотека
  • 20%
  • 30%
  • 40%
  • 50%
лет
  • 10 лет
  • 20 лет
  • 30 лет
Загружаем предложения от застройщика и банков
Корпус проверен наш.дом.рф
Обновлено 2 октября 2025
  • Нет в реестре проблемных объектов
  • Застройщик не банкрот

Ещё квартиры в жилом комплексе

33 квартиры в продаже · Сдан
Автор объявления

Застройщик «КОМОССТРОЙ®»

Надежный застройщик
КОМОССТРОЙ® строит дома и продает в них квартиры, офисы и магазины. Мы делаем это с 2005 года. За это время мы построили более 70 многоквартирных домов, в которых живет более 9 тысяч семей. Прямо сейчас под брендом КОМОССТРОЙ® строится 4,5 тысячи квартир ...
6 915 600 ₽
logo
Скидка 5%Акция от застройщика
Цена за метр
113 259 ₽/м²
Условия сделки
свободная продажа
1 500 000 м2Ввели в эксплуатацию с 2004 года
30 000 семейЖивут в построенных домах
8 наградПолучено с 2021 года на российских конкурсах