Мы используем куки-файлы. Соглашение об использовании
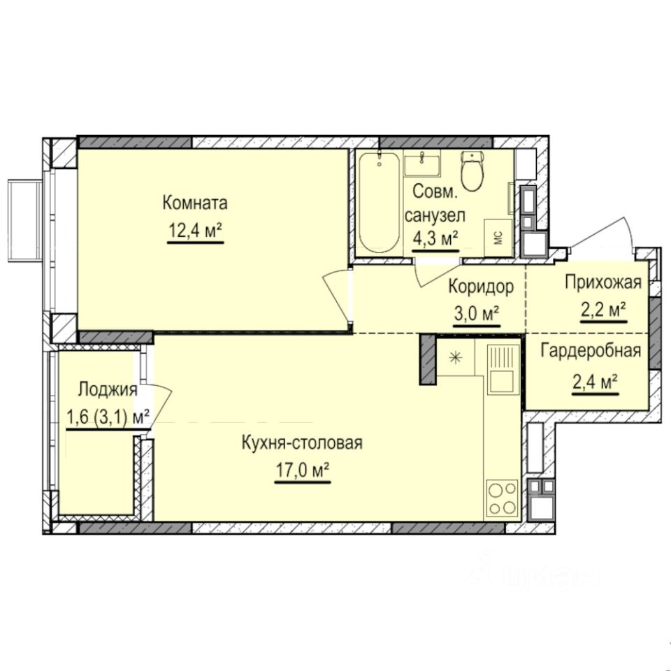
Общая площадь42,9 м²
Жилая площадь12,4 м²
Площадь кухни17 м²
Этаж12 из 17
Год сдачи2027
ДомНе сдан
ОтделкаС отделкой
Продаётся 1-комнатная квартира в строящемся доме (Дом 21), срок сдачи: III-кв. 2027, общей площадью 42.9 кв.м., на 12 этаже. Квартира от застройщика КОМОССТРОЙ. Покупка защищена ФЗ 214 с использованием эскроу счетов. Жилой комплекс "Норвежский лес" мы строим между улицами Цветочной и 10 лет Октября. Рядом есть сосновый бор, где зимой можно покататься на лыжах и подышать свежим лесным воздухом. Технологии строительства: Наружные стены выполняем из керамзитобетонного камня, минерального утеплителя и слоя штукатурки. Конструктив стены исключает вероятность промерзания перекрытий, обладает высокими теплоизоляционными свойствами, надежен и долговечен в эксплуатации. Разводка отопления по квартире периметральная (в отдельных случаях лучевая), в конструкции пола. Громоздкие стояки не будут портить ваши интерьеры. Высокие потолки типового жилого этажа, 2,7 м, создадут в вашей квартире ощущение объема и свободного пространства. На последних этажах мы предусмотрели повышенную высоту потолка 2,9 м. Входы в подъезды располагаем практически на уровне земли, что максимально удобно для транспортирования детских колясок и велосипедов. В каждой секции устанавливаем по два лифта: грузовой и пассажирский. Стильные и быстрые, они с комфортом поднимут вас до нужного этажа Дворы: Двор жилого комплекса "Норвежский Лес" мы проектируем, как уютное место для прогулок, занятий спортом, общения и отдыха всей семьей! Во дворах мы устанавливаем современные скамейки с USB-портами для зарядки гаджетов и Wi-Fi. В отделке дворовой территории используем только натуральные материалы. Многие архитектурные элементы выполняем из натурального, подготовленного к нашим климатическим условиям дерева. Все гостевые парковки располагаются по внешнему периметру комплекса. Доступ автотранспорта во двор запрещен. Отделка: До передачи квартиры собственнику, в квартире мы выполняем все капитальные и грязные работы. Поверхности стен из керамзитобетонного камня и бетона штукатурим сухими смесями. На гипсокартонных стенах шпаклюем стыки. Вам остается только поклеить обои по вашему вкусу. По дополнительному соглашению мы можем выполнить в вашей квартире чистовую отделку по нашему типовому проекту. Все вопросы можно уточнить в отделе продаж по телефону, указанному в объявлении. Звоните!

О квартире

Тип жилья

Новостройка

Общая площадь

42,9 м²

Жилая площадь

12,4 м²

Площадь кухни

17 м²

Высота потолков

2,61 м

Отделка

С отделкой

О доме

Тип дома

Монолитно-кирпичный

Пандус

Есть

Понравилась квартира — узнайте о ней больше

Застройщик ответит на все вопросы

Отделка в ЖК

  • Чистовая
  • Предчистовая

3D-тур

Посмотрите 3D-тур, чтобы оценить объект

О ЖК «Норвежский лес»

  • Сдача комплекса
    Сдача в 2027—2028, есть сданные
  • Застройщик
    КОМОССТРОЙ®
  • Класс
    Комфорт
  • Тип дома
    Монолитно-кирпичный
  • Парковка
    Гостевая
  • Отделка
    Предчистовая, чистовая
  • Тип комплекса
    Жилой комплекс
Похоже на то, что вы ищете?

Особенности жилого комплекса

  • Отделка

  • Парковка

  • Внутренний двор

  • Парки

  • Архитектура

  • Входная группа

  • Лифт

Подробнее о жилом комплексе

Акции в ЖК «Норвежский лес»

Узнайте про персональные условия и дополнительные скидки при покупке квартиры у застройщика
logo

Скидка 5%

Выгодно

Материнский капитал

Ипотечный калькулятор
  • Базовая
  • Семейная
  • ИТ-ипотека
  • 20%
  • 30%
  • 40%
  • 50%
лет
  • 10 лет
  • 20 лет
  • 30 лет
Загружаем предложения от застройщика и банков
Корпус проверен наш.дом.рф
Обновлено 23 апреля 2026
  • Нет в реестре проблемных объектов
  • Застройщик не банкрот
  • Есть эскроу счёт
  • Актуальные фото стройки

Ещё квартиры в жилом комплексе

202 квартиры в продаже · Сдача в 2027—2028, есть сданные
Автор объявления

Застройщик «КОМОССТРОЙ®»

Надежный застройщик
КОМОССТРОЙ® строит дома и продает в них квартиры, офисы и магазины. Мы делаем это с 2005 года. За это время мы построили более 70 многоквартирных домов, в которых живет более 9 тысяч семей. Прямо сейчас под брендом КОМОССТРОЙ® строится 4,5 тысячи квартир ...
5 716 200 ₽
logo
Скидка 5%Акция от застройщика
Цена за метр
133 245 ₽/м²
Условия сделки
долевое участие (214-ФЗ)
1 500 000 м2Ввели в эксплуатацию с 2004 года
30 000 семейЖивут в построенных домах
8 наградПолучено с 2021 года на российских конкурсах