Мы используем куки-файлы. Соглашение об использовании
Только на Циан
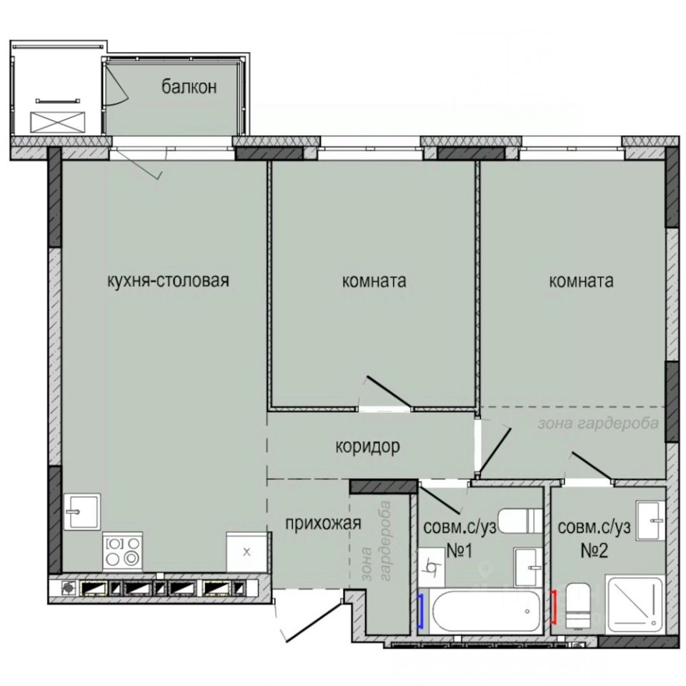
Общая площадь58,1 м²
Жилая площадь24,2 м²
Площадь кухни18,7 м²
Этаж10 из 16
Год сдачи2028
ДомНе сдан
ОтделкаНет информации
Продаётся 2-комнатная квартира в строящемся доме (Дом 10), срок сдачи: III-кв. 2028, общей площадью 58.1 кв.м., на 10 этаже. Объявление от застройщика КОМОССТРОЙ. Покупка защищена ФЗ 214 с использованием эскроу счетов. Ежевика - это новый микрорайон на улице 10 лет Октября! Он будет располагаться у опушки соснового леса, рядом с бизнес-центром "Нова-Парк". Сердце микрорайона - центральная площадь. На 3130 м2 территории будут расположены: современные детские игровые площадки для всех возрастов, оборудованы места отдыха с беседками и гамаками, торговый центр и множество кафе. Для создания уюта внутри жилого комплекса мы высаживаем почти 60 000 м2 зеленых насаждений: газоны, многолетние цветущие кустарники и полноразмерные деревья! Квартира: Вы можете выбрать два варианта отделки квартиры: предчистовую, если вы хотите самостоятельно заняться дизайном, или чистовую, если вам нужно вселиться в квартиру как можно быстрее. Отделочные материалы, применяемые нами в строительстве, вы можете посмотреть в шоу-руме нашего офиса продаж записавшись на посещение по телефону в объявлении. Предчистовая отделка: До передачи квартиры собственнику мы выполняем в ней все капитальные и грязные работы. Стены подготавливаем под оклейку обоями. На полу выполняем полусухую стяжку со звукоизолирующим слоем. Предусмотрена периметральная поквартирная разводка труб отопления в конструкции пола. Устанавливаем стильные стальные панельные радиаторы с нижней подводкой. Устанавливаем клапаны приточной вентиляции, обеспечивающие оптимальный режим притока свежего воздуха в помещение. Приточный клапан оснащен системами шумоизоляции и фильтрации воздуха. Устанавливаем надежные металлические входные двери с тепло- и звукоизоляцией. Выполняем прокладку электросетей, устанавливаем электросчетчики, одну розетку и один выключатель в прихожей. Все вопросы можно уточнить в отделе продаж по телефону. Звоните!

О квартире

Тип жилья

Новостройка

Общая площадь

58,1 м²

Жилая площадь

24,2 м²

Площадь кухни

18,7 м²

Высота потолков

2,59 м

Отделка

Нет информации

О доме

Количество лифтов

6 пассажирских

Тип дома

Монолитно-кирпичный

Пандус

Есть

Понравилась квартира — узнайте о ней больше

Застройщик ответит на все вопросы

Отделка в ЖК

  • Чистовая
  • Предчистовая

О ЖК «Ежевика»

  • Сдача комплекса
    Сдача в 3 кв. 2028, есть сданные
  • Застройщик
    КОМОССТРОЙ®
  • Класс
    Комфорт
  • Тип дома
    Монолитно-кирпичный
  • Парковка
    Гостевая
  • Отделка
    Предчистовая, чистовая
  • Тип комплекса
    Жилой комплекс
Похоже на то, что вы ищете?

Особенности жилого комплекса

  • Отделка

  • Внутренний двор

  • Архитектура

  • Входная группа

  • Лифт

Подробнее о жилом комплексе

Акции в ЖК «Ежевика»

Узнайте про персональные условия и дополнительные скидки при покупке квартиры у застройщика
logo

Скидка 5%

Выгодно

Рассрочка 0%

Материнский капитал

Ипотечный калькулятор
  • Базовая
  • Семейная
  • ИТ-ипотека
  • 20%
  • 30%
  • 40%
  • 50%
лет
  • 10 лет
  • 20 лет
  • 30 лет
Загружаем предложения от застройщика и банков
Корпус проверен наш.дом.рф
Обновлено 4 мая 2026
  • Нет в реестре проблемных объектов
  • Застройщик не банкрот
  • Есть эскроу счёт
  • Актуальные фото стройки

Ещё квартиры в жилом комплексе

265 квартир в продаже · Сдача в 3 кв. 2028, есть сданные
Автор объявления

Застройщик «КОМОССТРОЙ®»

Надежный застройщик
КОМОССТРОЙ® строит дома и продает в них квартиры, офисы и магазины. Мы делаем это с 2005 года. За это время мы построили более 70 многоквартирных домов, в которых живет более 9 тысяч семей. Прямо сейчас под брендом КОМОССТРОЙ® строится 4,5 тысячи квартир ...
6 851 600 ₽
logo
Скидка 5%Акция от застройщика
Цена за метр
117 928 ₽/м²
Условия сделки
долевое участие (214-ФЗ)
1 500 000 м2Ввели в эксплуатацию с 2004 года
30 000 семейЖивут в построенных домах
8 наградПолучено с 2021 года на российских конкурсах