Мы используем куки-файлы. Соглашение об использовании
Только на Циан
  • ВТБ
    ПСБ
    Совкомбанк
    Альфа-Банк
    Уралсиб
    Банк ДОМ.РФ
    Т-Банк
    МКБ
    Абсолют Банк
    Реальные ипотечные ставки от 9 банков - 5,75% на новостройки, 16,9% на вторичку
    Перейти в сервис
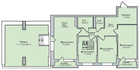
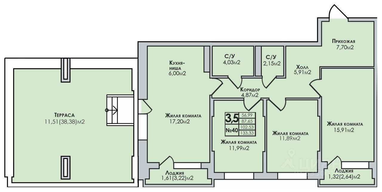
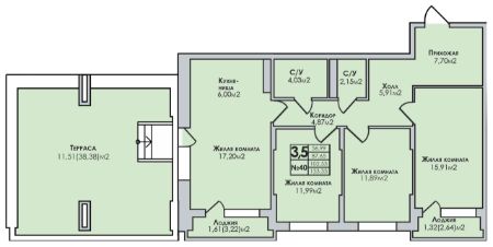
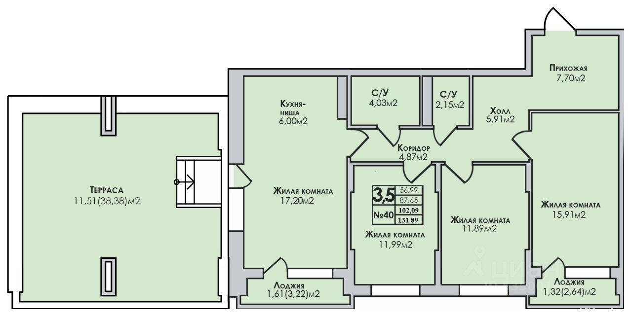
Общая площадь131,89 м²
Этаж5 из 7
Год сдачи2026
ДомНе сдан
Продаётся 4-комнатная квартира в строящемся доме (Дом 1), срок сдачи: II-кв. 2026, общей площадью 133.33 кв.м., на 5 этаже. Новый жилой комплекс "Новый горизонт" от застройщика "Строим Вместе" расположен по адресу Удмуртская Республика, Сарапул, улица Труда

О квартире

Тип жилья

Новостройка

Общая площадь

131,89 м²

Высота потолков

2,7 м

О доме

Количество лифтов

4 пассажирских

Тип дома

Монолитно-кирпичный

Похоже на то, что вы ищете?
Ипотечный калькулятор
  • Базовая
  • Семейная
  • ИТ-ипотека
  • 20%
  • 30%
  • 40%
  • 50%
лет
  • 10 лет
  • 20 лет
  • 30 лет
Загружаем предложения от застройщика и банков
Корпус проверен наш.дом.рф
Обновлено 23 апреля 2026
  • Нет в реестре проблемных объектов
  • Застройщик не банкрот
  • Есть эскроу счёт
  • Актуальные фото стройки

Ещё квартиры в жилом комплексе

22 квартиры в продаже · Сдача в 2 кв. 2026
Консультант
Циан
  • 5 лет 10 месяцев на Циане
  • 38583 объявления
  • 12 250 800 ₽
    Цена за метр
    92 886 ₽/м²
    Условия сделки
    долевое участие (214-ФЗ)
    Консультант
    Циан