Мы используем куки-файлы. Соглашение об использовании
ЗабронированаОт застройщика
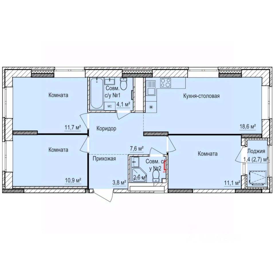
Общая площадь81,75 м²
Этаж5 из 17
Год сдачи2025
ДомСдан
ОтделкаС отделкой

Подробнее о квартире

Продаётся 3-комнатная квартира в сданном доме (10 лет Октября, 79 (Дом 3)), срок сдачи: IV-кв. 2025, общей площадью 81.9 кв.м., на 5 этаже. Квартира от застройщика КОМОССТРОЙ. Покупка защищена ФЗ 214 с использованием эскроу счетов. ЖК Покровский на улице 10 лет Октября - по-настоящему семейный жилой комплекс! В шаговой доступности находятся: - Школы 72 и 93; - Детские сады 52, 54, 63, 101 и 238; - Торговые центры "Эльгрин", "Омега" и "Столица"; - Фитнес клубы "Платформа" и "Омега-фитнес". В проекте жилого комплекса мы предусмотрели большое количество детских и спортивных площадок, зеленую аллею для прогулок с элементами ландшафтного дизайна, широкие дворовые проезды, новый, расширенный пакет системы "Умный дом". Квартира: Мы выполняем все капитальные и грязные работы до передачи квартиры собственнику. Стены подготавливаем под оклейку обоями. На полу выполняем полусухую стяжку со звукоизолирующим слоем. Предусмотрена периметральная поквартирная разводка труб отопления в конструкции пола. Устанавливаем стильные стальные панельные радиаторы с нижней подводкой. Устанавливаем клапаны приточной вентиляции, обеспечивающие оптимальный режим притока свежего воздуха в помещение. Приточный клапан оснащен системами шумоизоляции и фильтрации воздуха. Устанавливаем надежные металлические входные двери с тепло- и звукоизоляцией. Выполняем прокладку электросетей, устанавливаем электросчетчики, одну розетку и один выключатель в прихожей. По дополнительному соглашению мы можем выполнить в вашей квартире чистовую отделку по нашему типовому проекту. Все вопросы можно уточнить в отделе продаж по телефону, указанному в объявлении. Звоните!

О квартире

Тип жилья

Новостройка

Общая площадь

81,75 м²

Высота потолков

2,61 м

Отделка

С отделкой

О доме

Количество лифтов

2 пассажирских

Тип дома

Монолитно-кирпичный

Пандус

Есть

Понравилась квартира — узнайте о ней больше

Застройщик ответит на все вопросы

Отделка в ЖК

  • Чистовая
  • Предчистовая

3D-тур

Посмотрите 3D-тур, чтобы оценить объект

О ЖК «Покровский»

  • Сдача комплекса
    Сдача в 2026—2028, есть сданные
  • Застройщик
    КОМОССТРОЙ®
  • Класс
    Комфорт
  • Тип дома
    Монолитно-кирпичный
  • Парковка
    Гостевая
  • Отделка
    Предчистовая, чистовая
  • Тип комплекса
    Жилой комплекс

Особенности жилого комплекса

  • Отделка

  • Парковка

  • Внутренний двор

  • Архитектура

  • Входная группа

  • Лифт

Подробнее о жилом комплексе

Акции в ЖК «Покровский»

Узнайте про персональные условия и дополнительные скидки при покупке квартиры у застройщика
logo

Скидка 5%

Выгодно

Рассрочка 0%

Материнский капитал

Ипотечный калькулятор
  • Базовая
  • Семейная
  • ИТ-ипотека
  • 20%
  • 30%
  • 40%
  • 50%
лет
  • 10 лет
  • 20 лет
  • 30 лет
Загружаем предложения от застройщика и банков
Корпус проверен наш.дом.рф
Обновлено 9 октября 2025
  • Нет в реестре проблемных объектов
  • Застройщик не банкрот

Ещё квартиры в жилом комплексе

156 квартир в продаже · Сдача в 2026—2028, есть сданные
Автор объявления

Застройщик «КОМОССТРОЙ®»

Надежный застройщик
КОМОССТРОЙ® строит дома и продает в них квартиры, офисы и магазины. Мы делаем это с 2005 года. За это время мы построили более 70 многоквартирных домов, в которых живет более 9 тысяч семей. Прямо сейчас под брендом КОМОССТРОЙ® строится 4,5 тысячи квартир ...

Такая же квартира на другом этаже

Планировка
Площадь
Срок сдачи
Этаж
Стоимость
Планировка
3-комнатная 81,5 м²
Забронирована
4 кв. 2025
6 из 17
9 418 500 ₽
9 418 500 ₽
logo
Скидка 5%Акция от застройщика
Цена за метр
115 211 ₽/м²
Условия сделки
свободная продажа

Квартира забронирована

Застройщик может записать вас в очередь или подобрать похожую
1 500 000 м2Ввели в эксплуатацию с 2004 года
30 000 семейЖивут в построенных домах
8 наградПолучено с 2021 года на российских конкурсах