Мы используем куки-файлы. Соглашение об использовании
Только на Циан
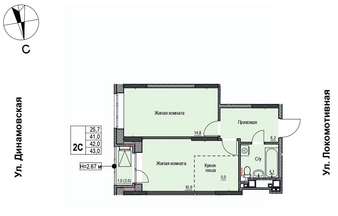
Общая площадь42,5 м²
Этаж1 из 17
Год сдачи2027
ДомНе сдан
Продаётся 2-комнатная квартира в строящемся доме (Дом 1), срок сдачи: II-кв. 2027, общей площадью 42.5 кв.м., на 1 этаже. ЖК "Локомотив" - это жилой комплекс, состоящий из трех домов, объединенных стилобатом. Удобное расположение, 15 минут до центра.

О квартире

Тип жилья

Новостройка

Общая площадь

42,5 м²

Высота потолков

2,59 м

О доме

Количество лифтов

2 пассажирских, 2 грузовых

Тип дома

Монолитно-кирпичный

Похоже на то, что вы ищете?
Ипотечный калькулятор
  • Базовая
  • Семейная
  • ИТ-ипотека
  • 20%
  • 30%
  • 40%
  • 50%
лет
  • 10 лет
  • 20 лет
  • 30 лет
Загружаем предложения от застройщика и банков
Корпус проверен наш.дом.рф
Обновлено 22 апреля 2026
  • Нет в реестре проблемных объектов
  • Застройщик не банкрот
  • Есть эскроу счёт
  • Актуальные фото стройки

Ещё квартиры в жилом комплексе

262 квартиры в продаже · Сдача в 2027—2029
Консультант
Циан
  • 5 лет 10 месяцев на Циане
  • 37476 объявлений
  • 4 535 068 ₽
    Цена за метр
    106 707 ₽/м²
    Условия сделки
    долевое участие (214-ФЗ)
    Консультант
    Циан