


144 000 ₽/м²
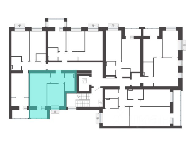
Продаётся 1-комнатная квартира в строящемся доме (Дом 7), срок сдачи: III-кв. 2026, общей площадью 40.1 кв.м., на 5 этаже. Квартира от застройщика КОМОССТРОЙ. Покупка защищена ФЗ 214 с использованием эскроу счетов. Солнечные кварталы Санвилл это жилой микрорайон с кирпичными домами и уникальными для нашего города урбанвиллами. Мы строим его в уже знакомом месте - на границе Завьяловского района и города Ижевска, вдоль улицы Берша. Дворы здесь будут наполнены зеленью! Мы выполняем их по индивидуальному проекту ландшафтного дизайна. Высаживаем огромное количество декоративных растений, полноразмерных деревьев, формируем клумбы из цветущих кустарников и душистых полевых трав. Квартира: Квартиру проектируем в современном и практичном евроформате, с вместительными кухнями-столовыми, удобными нишами под гардеробные и мастер-спальнями. До передачи квартиры собственнику мы выполняем в ней все капитальные и грязные работы. Стены подготавливаем под оклейку обоями. На полу выполняем полусухую стяжку со звукоизолирующим слоем. Предусмотрена периметральная поквартирная разводка труб отопления в конструкции пола. Устанавливаем стильные стальные панельные радиаторы с нижней подводкой. Устанавливаем клапаны приточной вентиляции, обеспечивающие оптимальный режим притока свежего воздуха в помещение. Приточный клапан оснащен системами шумоизоляции и фильтрации воздуха. Устанавливаем надежные металлические входные двери с тепло- и звукоизоляцией. Выполняем прокладку электросетей, устанавливаем электросчетчики, одну розетку и один выключатель в прихожей. По дополнительному соглашению мы можем выполнить в вашей квартире чистовую отделку по нашему типовому проекту. Умный дом: В Солнечных кварталах Санвилл мы реализуем новый, расширенный пакет системы Умный Дом! Домофоны с системой распознавания лиц, автоматизация контроля прохода и проезда на придомовую территорию, видеонаблюдение через приложение в смартфоне и автоматизированный сбор и передача показаний счетчиков. Функции системы сделают вашу жизнь более комфортной и безопасной. Все вопросы можно уточнить в отделе продаж по телефону указанному в объявлении. Звоните! Купить 1-комнатную квартиру на 5 этаже в республике Удмуртская.
































































































































