150 138 ₽/м²
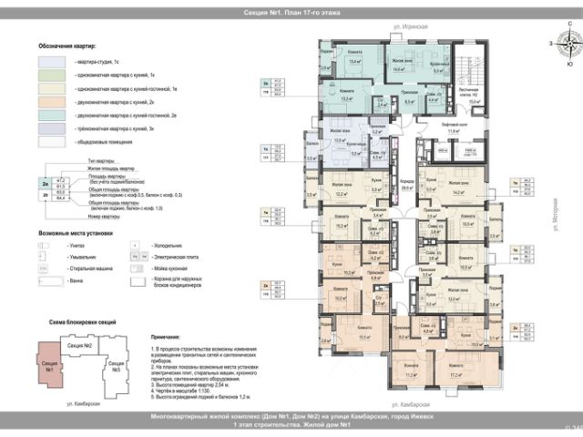
Продаётся 1-комнатная квартира в строящемся доме (Дом 5), срок сдачи: III-кв. 2026, общей площадью 49.2 кв.м., на 17 этаже. Жилой комплекс "Седьмое Небо" для тех, кто хочет чуть большего. Чуть большее - это умные жилые планировки. Активные дворы и стильная архитектура. И чуть, больше чем просто хорошее место - в двух минутах от улицы Ленина, но без дорожного шума, пыли и выхлопных газов. ЖК "Седьмое Небо" для тех, кто не хочет останавливаться, а хочет чуть большего, чем у всех. В доме - умные семейные планировки. Комнаты с правильной геометрией. Каждый метр площади - эффективен! В доме отличный вид на город, это одна из самых высоких точек Ижевска. ЖК "Седьмое Небо" - это стильная архитектура с ночной подсветкой и активные дворы с интересными и безопасными площадками. "Седьмое Небо" - это чистый лесной воздух, тишина и пение птиц. И всего 5 минут до центра города на автомобиле. Жилой комплекс "Седьмое Небо" расположен в Первомайском районе Ижевска на пересечении улиц Бабушкина и Ухтомского. Рядом автобусные и трамвайные остановки на ул.Ленина. В шаговой доступности гипермаркет Ашан". В ближайшем окружении: 10 школ, 11 детских садов, 5 санаториев, 5 торгово-развлекательных центров, 8 бассейнов, 3 ледовых катка, ипподром, фитнес-центры Спортивный квартал" и Сосновый".



































































