87 719 ₽/м²
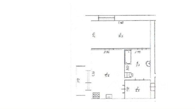
Продается уютная однокомнатная квартира площадью 28.5 кв. м в панельном доме 1994 года постройки. Квартира находится на 2-м этаже 5-этажного здания, окна выходят на улицу. Высота потолков составляет 2.44 метра. Отличный вариант для тех, кто ищет комфортное жилье в спокойном районе. В квартире сделан косметический ремонт, что позволяет сразу заехать и жить. Просторная жилая площадь 14.4 кв. м и кухня 6.4 кв. м создают комфортную атмосферу для проживания. Санузел совмещенный, а балкон станет приятным дополнением к общей планировке. Дом находится в хорошем состоянии, подъезд чистый и ухоженный. В шаговой доступности находятся школы, детские сады, клиники и магазины, что делает это место идеальным для семейного проживания. Отличное транспортное сообщение: всего несколько минут до ближайших остановок общественного транспорта. Новым хозяевам остается кухонный гарнир, плита, диван, стенка, гардероб. Условия сделки: продажа от собственника, без посредников. Возможна ипотека, все документы готовы к сделке, юридически объект чист. Приглашаем вас на просмотр, чтобы оценить все преимущества этой квартиры лично. Не упустите возможность стать обладателем отличного жилья! Звоните и записывайтесь на удобное для вас время. Продается 1-комнатная квартира в панельном доме в Воткинске.











































































