119 437 ₽/м²
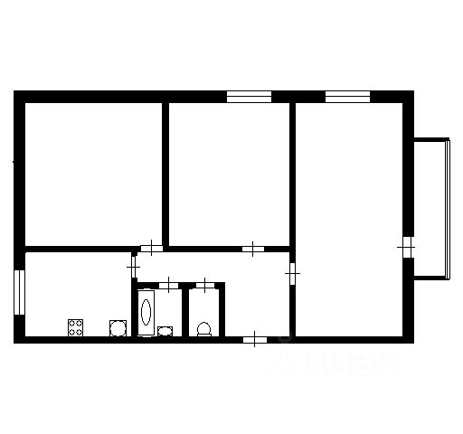
Продается уютная трехкомнатная квартира в городе Воткинск, по адресу: улица Мира, 31. Общая площадь квартиры составляет 58,6 кв. м, жилая площадь — 36,5 кв. м, кухня — 7,7 кв. м. Квартира расположена на 5-м этаже кирпичного дома, построенного в 1987 году. Высота потолков — 2,5 метра. Из окон открывается отличный вид как на улицу, так и во двор. Квартира выполнена в дизайнерском стиле, что придаёт ей особый шарм и уют. Все комнаты светлые и просторные, что позволяет создать комфортную атмосферу для проживания. Поменяны электрика, сантехника, выровнены стены, это даёт возможность быстро поменять обои, если есть необходимость. Перенесены двери в комнатах. Натуральные полы, двери. В кухне сделана дверь на лоджию, что дает много света, на полу мрамор. Кухонный гарнитур остаётся. В квартире есть лоджия 6м, где можно наслаждаться свежим воздухом. Увеличенные проёмы дают много света и уюта. Санузел раздельный, на полу и стенах мрамор. Ванная комната увеличена. Квартира полностью готова к заселению, в ней есть всё необходимое для комфортного проживания. Перепланировка официальная, что важно при покупке квартиры. Подъезд чистый, после ремонта. Можно оставлять велосипеды и коляски. Соседи дружелюбные . Всего 2 квартиры на площадке. Дом находится в отличном состоянии, на территории имеется наземная парковка, поэтому у вас всегда будет место для автомобиля. Район тихий и спокойный, что идеально для семейной жизни. В шаговой доступности расположены лучшая школа города лицей, рейтинговые садики, клиники, много магазинов. Вторая линия от пруда, парк 4 сезона, Березовский лес, что делает эту квартиру отличным выбором для семьи с детьми. Квартира продается без посредников, от собственника. Возможна продажа с использованием ипотеки. Все документы готовы к сделке, обременений нет. Звоните и записывайтесь на просмотр. Мы будем рады показать вам эту замечательную квартиру и ответить на все ваши вопросы. Не упустите шанс стать владельцем комфортного жилья в одном из лучших районов Воткинска! В связи с отсутствием интернета, пишите, пожалуйста в сообщениях. 3-комнатная квартира с лоджией в Воткинске.









































