


131 099 ₽/м²
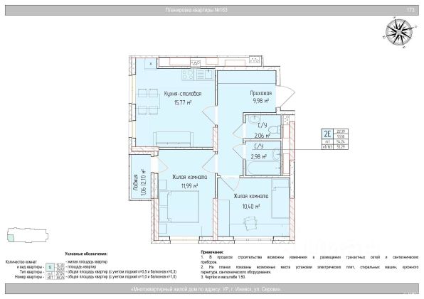
Новый восход — современный жилой комплекс в динамично развивающемся микрорайоне "Столичный" города Ижевска. Расположен на первой линии Воткинского шоссе. Жилой комплекс состоит из четырёх домов разной этажности — девять, десять и двадцать четыре. Благодаря такой архитектурной концепции Новый восход воспринимается легко и динамично. Цветовая гамма фасадов напоминает лучи солнца на восходе. Дом гармонирует с окружающей природой и городской средой. В жилом комплексе предусмотрено 29 эргономичных планировок: от уютных студий до просторных трехкомнатных квартир. Классические планировки или квартиры с кухнями-гостиными — каждый найдёт для себя подходящий вариант. 3-комнатная квартира в микрорайоне Столичный в городе Ижевск.

































































