


157 971 ₽/м²
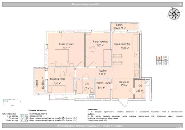
СТАРТ ПРОДАЖ! Успейте забронировать квартиру по ценам 2025 года в финальном доме ЖК "Пять континентов". Живите в центре! Квартиры в топовой локации Ижевска, где всё действительно рядом. • 15 минут пешком до набережной и Центральной площади • Новый пешеходный бульвар вдоль домов — комфортное пространство для прогулок и встреч • Школы, детские сады и работа — в шаговой доступности • Все виды общественного транспорта рядом Финальный дом жилого комплекса Состоит из двух секций переменной этажности — от 9 до 23 этажей. • Просторные кухни-гостиные • Мастер-спальни с собственной душевой • Закрытая территория и видеонаблюдение 24/7 • Двухуровневый подземный паркинг • Индивидуальные кладовые • Тихий и безопасный внутренний двор Внутри комплекса — спокойствие и безопасность, за его пределами — динамика центрального района. Новый район CITY: престижные дома и культурное окружение вокруг. Жильё в центре — надёжный ликвид и уверенность в будущем. Выбирайте ЖК "Пять континентов" для жизни и инвестиций. Купить 4-комнатную квартиру в новостройке с большой кухней в Ижевске.



























































































