



























































168 392 ₽/м²
ЖИВИТЕ В ЦЕНТРЕ! Продаётся 2-комнатная квартира с кухней-гостиной от девелопера UDS в ЖК "Пять континентов", дом 4, секция 1 на 6 этаже. Общая площадь — 71,08 м². Выбирайте квартиру в топовой локации Ижевска, чтобы всё успевать сегодня и создавать надёжный актив на будущее. Самый центр города — район, где кипит жизнь: на работу — без пробок, до школы — пешком. — Вдоль домов появится пешеходный бульвар для прогулок и встреч. — 15 минут до набережной и Центральной площади. Рядом детские сады 235, 189, 287, 241, 73; школы 5, 88, 11, 22, 27; частные школы SOK, NOVA; развивающие центры: Маленький гений, Сова, Знайка, АБВГД+, Tosky Talky, Cherry-Pick, Оранжевый лев, Монтессори-дворик, Слушарики. Лицей 29 — всего две остановки на трамвае. — Закрытый двор без машин — спокойно отпускайте ребёнка играть с друзьями. — Внутри комплекса — тишина и безопасность, вокруг — динамика центрального района. — Для автомобилистов: подземный паркинг и наземная стоянка. — Все виды общественного транспорта. Остановка — "магазин Океан". Кафе и магазины — на 1 этаже. Сервисы отеля у вас дома — уборка в подарок на первые 6 месяцев. Забудьте о бытовых хлопотах в новой квартире. Удобная планировка для семьи: • Кухня-гостиная 20,69 м² — собирайте вместе за большим столом. • Две спальни на разные стороны света - больше приватности: детская 14,11 м², родительская мастер-спальня с гардеробной и лоджией 12,88 м² • Два санузла — удобно для всех • 12 этажей в доме, кирпичная секция Передача ключей — до 30 марта 2028 года. Первые дома уже сданы. Пройдите тест-драйв ЖК — приглашаем на экскурсию. Специальные условия покупки от UDS: • Рассрочка 0% — без переплат. • Трейд-ин — обменяем вашу квартиру на новую. • Банковские программы — рассчитаем на месте. Звоните, пишите — поможем подобрать оптимальные условия. ЖК "Пять континентов" — для жизни и инвестиций. Жильё в центре — ликвид, с которым вы всегда в плюсе.



99 223 ₽/м²
Продаётся 1-комнатная квартира в строящемся доме (Дом 1), срок сдачи: II-кв. 2027, общей площадью 27.3 кв.м., на 1 этаже. ЖК "Локомотив" - это жилой комплекс, состоящий из трех домов, объединенных стилобатом. Удобное расположение, 15 минут до центра.



103 797 ₽/м²
Продаётся 2-комнатная квартира в строящемся доме (Дом 1), срок сдачи: II-кв. 2027, общей площадью 42 кв.м., на 4 этаже. ЖК "Локомотив" - это жилой комплекс, состоящий из трех домов, объединенных стилобатом. Удобное расположение, 15 минут до центра.



164 283 ₽/м²
ЖИВИТЕ В ЦЕНТРЕ! Продаётся 2-комнатная квартира с кухней-гостиной от девелопера UDS в ЖК "Пять континентов", дом 4, секция 2 на 2 этаже. Общая площадь — 61,78 м². Выбирайте квартиру в топовой локации Ижевска, чтобы всё успевать сегодня и создавать надёжный актив на будущее. Самый центр города — район, где кипит жизнь: на работу — без пробок, до школы — пешком. — Вдоль домов появится пешеходный бульвар для прогулок и встреч. — 15 минут до набережной и Центральной площади. Рядом детские сады 235, 189, 287, 241, 73; школы 5, 88, 11, 22, 27; частные школы SOK, NOVA; развивающие центры: Маленький гений, Сова, Знайка, АБВГД+, Tosky Talky, Cherry-Pick, Оранжевый лев, Монтессори-дворик, Слушарики. Лицей 29 — всего две остановки на трамвае. — Закрытый двор без машин — спокойно отпускайте ребёнка играть с друзьями. — Внутри комплекса — тишина и безопасность, вокруг — динамика центрального района. — Для автомобилистов: подземный паркинг и наземная стоянка. — Все виды общественного транспорта. Остановка — "магазин Океан". Кафе и магазины — на 1 этаже. Сервисы отеля у вас дома — уборка в подарок на первые 6 месяцев. Забудьте о бытовых хлопотах в новой квартире. Удобная планировка для семьи: • Кухня-гостиная 18,46 м² — собирайтесь вместе за большим столом. • Две спальни на разные стороны света - больше приватности: детская 12,82 м², родительская мастер-спальня с лоджией 13,38 м² • Два санузла — удобно для всех • Всего 8 этажей в доме меньше соседей, больше приватности Передача ключей — до 30 марта 2028 года. Первые дома уже сданы. Пройдите тест-драйв ЖК — приглашаем на экскурсию. Специальные условия покупки от UDS: • Рассрочка 0% — без переплат. • Трейд-ин — обменяем вашу квартиру на новую. • Банковские программы — рассчитаем на месте. Звоните, пишите — поможем подобрать оптимальные условия. ЖК "Пять континентов" — для жизни и инвестиций. Жильё в центре — ликвид, с которым вы всегда в плюсе.



176 904 ₽/м²
ЖИВИТЕ В ЦЕНТРЕ! Продаётся 2-комнатная квартира с кухней-гостиной от девелопера UDS в ЖК "Пять континентов", дом 4, секция 2 на 4 этаже. Общая площадь — 61,78 м². Выбирайте квартиру в топовой локации Ижевска, чтобы всё успевать сегодня и создавать надёжный актив на будущее. Самый центр города — район, где кипит жизнь: на работу — без пробок, до школы — пешком. — Вдоль домов появится пешеходный бульвар для прогулок и встреч. — 15 минут до набережной и Центральной площади. Рядом детские сады 235, 189, 287, 241, 73; школы 5, 88, 11, 22, 27; частные школы SOK, NOVA; развивающие центры: Маленький гений, Сова, Знайка, АБВГД+, Tosky Talky, Cherry-Pick, Оранжевый лев, Монтессори-дворик, Слушарики. Лицей 29 — всего две остановки на трамвае. — Закрытый двор без машин — спокойно отпускайте ребёнка играть с друзьями. — Внутри комплекса — тишина и безопасность, вокруг — динамика центрального района. — Для автомобилистов: подземный паркинг и наземная стоянка. — Все виды общественного транспорта. Остановка — "магазин Океан". Кафе и магазины — на 1 этаже. Сервисы отеля у вас дома — уборка в подарок на первые 6 месяцев. Забудьте о бытовых хлопотах в новой квартире. Удобная планировка для семьи: • Кухня-гостиная 18,46 м² — собирайтесь вместе за большим столом. • Две спальни на разные стороны света - больше приватности: детская 12,82 м², родительская мастер-спальня с лоджией 13,38 м² • Два санузла — удобно для всех • Всего 8 этажей в доме меньше соседей, больше приватности Передача ключей — до 30 марта 2028 года. Первые дома уже сданы. Пройдите тест-драйв ЖК — приглашаем на экскурсию. Специальные условия покупки от UDS: • Рассрочка 0% — без переплат. • Трейд-ин — обменяем вашу квартиру на новую. • Банковские программы — рассчитаем на месте. Звоните, пишите — поможем подобрать оптимальные условия. ЖК "Пять континентов" — для жизни и инвестиций. Жильё в центре — ликвид, с которым вы всегда в плюсе.


102 945 ₽/м²
Лучше пишите, не всегда могу ответить Срочная продажа, возможен торг Выдача ключей будет в уже в мае этого года Успенский — жилой комплекс комфорт-класса в Ижевске, расположенный рядом с пересечением улиц Телегина и Баранова в Ленинском районе. Застройщик — ООО СЗ Ижрегионстрой. Некоторые характеристики комплекса: Транспортная доступность: до центра города можно добраться на общественном транспорте за 1520 минут. Инфраструктура: на территории есть детская и спортивная площадки с резиновым покрытием, а также площадка для отдыха. Социальные объекты: в шаговой доступности продуктовые магазины, сквер Заречный, Успенский храм, шесть детских садов, средняя общеобразовательная школа 89 с углублённым изучением отдельных предметов. Архитектура: при строительстве применяется технология монолитного каркаса, фасады выполнены из керамического кирпича заводской окраски и качественных газобетонных блоков. Входные группы: есть большая колясочная, индивидуальные кладовые помещения на каждом этаже, собственный вход в квартиру на первом этаже. Лифты: два высокоскоростных лифта обеспечивают быстрый доступ к квартирам.



161 216 ₽/м²
ДОМ СДАН! КЛЮЧИ - СРАЗУ Продаётся уникальная квартира свободной планировки с террасой от девелопера UDS в ЖК "Пять континентов" в 3 доме комплекса. Секция 1 на 2 этаже. Общая площадь — 86,89 м². Выбирайте эксклюзивную квартиру в топовой локации Ижевска, чтобы создавать надёжный актив на будущее. — Самый центр города — район, где кипит жизнь. — Вдоль домов появится пешеходный бульвар для прогулок и встреч. — 15 минут до набережной и Центральной площади. Рядом вся необходимая инфраструктура. Остановка общественного транспорта "магазин "Океан". Кафе, магазины и все необходимые сервисы — на 1 этаже. Сервисы отеля у вас дома — при покупке недвижимости в домах UDS получаете в подарок 6 месяцев сервиса: масштабная уборка после ремонта, генеральная и регулярная поддерживающая уборка, химчистка мебели, мойка окон. Наслаждайтесь жизнью в новой квартире с первого дня и не думайте о бытовых вопросах. Квартира для тех, кто ищет что-то по-настоящему особенное: • Ваша личная терраса 25,44 м² с ограждением и покрытием из террасной доски приватное место для отдыха в городе и встреч с друзьями • Свободное пространство квартиры 52,46 м² - воплотите самые смелые дизайн-идеи и зонируйте квартиру по своему вкусу. • 2 санузла гостевой и личный 4,33 м² и 1,78 м² • Всего 40 квартир в доме - меньше соседей, больше приватности. Ключи — сразу. Дом сдан. Приглашаем на экскурсию. Специальные условия покупки от UDS: • Трейд-ин — обменяем вашу квартиру на новую. • Банковские программы — рассчитаем на месте. Звоните, пишите — поможем подобрать оптимальные условия. ЖК "Пять континентов" — для жизни и инвестиций. Жильё в центре — ликвид, с которым вы всегда в плюсе.



195 884 ₽/м²
Бизнес-класс на ул. Кирова. Воплощайте мечты о доме в бульварном квартале "Пять континентов". Здесь вы сможете жить в центре Ижевска в эстетичном современном пространстве. Дома комплекса спроектированы по европейским тенденциям международным архитектурным бюро MLA+. Здесь общественные городские и частные зоны разделены не привычными заборами, а гармонично соседствуют друг с другом. Вдоль домов "Пяти континентов" пройдет городской пешеходный бульвар и станет новым маршрутом прогулок и отдыха. Бульвар начнется со сквера на пересечении улиц Кирова и Карла Маркса. И уже сейчас часть сквера построена, приходите и оцените вживую. Если вы хотите жить в невысотном доме в спокойной обстановке, то в "Пяти континентах" вам подойдут уютные дома с эркерами и лоджиями высотой всего 6, 7 и 9 этажей. А если нравятся высотные дома, то в "Пяти континентах" вы увидите и высотные секции внутри квартала высотой 12 и 17 этажей. Ездить на автомобиле ежедневно или добираться пешком жителям "Пяти континентах" удобно одинаково. В комплексе есть подземный паркинг, и, в целом, он выгодно расположен на пересечении улиц Кирова и Карла Маркса, рядом с остановкой "Магазин "Океан". В 15 минутах хотьбы - Центральная площадь и набережная. Здания комплекса примыкают друг другу торцами и создают единую архитектурную форму. Дома по обе стороны бульвара задают направление для прогулок, а волнообразный рисунок брусчатки и плавные изгибы делают бульвар похожим на русло реки. Каждый дом комплекса отличается от другого этажностью, формой, цветом, геометрией фасада. • 6-17 этажей высота домов, • Всего 5 квартир на этаже, • На -1 этаже подземный паркинг, • Высота потолка 2,7 м, • Сквозной вход в дом с улицы и со двора, • Огороженный двор без машин. Передача ключей 1 квартал 2028 года. При покупке недвижимости в домах UDS вы получаете в подарок 6 или 12 месяцев дополнительного сервиса отельного уровня. В зависимости от пакета в программу входит: масштабная уборка после ремонта, генеральная и регулярная поддерживающая уборка, химчистка мебели, мойка окон, глажка вещей, личный шеф-повар на праздник. Наслаждайтесь жизнью в новой квартире с первого дня и не думайте о бытовых вопросах.



173 902 ₽/м²
ДОМ СДАН! КЛЮЧИ - СРАЗУ Продаётся уникальная 2-комнатная квартира с кухней-гостиной и террасой от девелопера UDS в ЖК "Пять континентов" в 3 доме комплекса. Секция 1 на 2 этаже. Общая площадь — 67,11 м². Выбирайте квартиру в топовой локации Ижевска с эксклюзивной планировкой, чтобы получать выгоду уже сегодня и создавать надёжный актив на будущее. — Самый центр города — район, где кипит жизнь. — Вдоль домов появится пешеходный бульвар для прогулок и встреч. — 15 минут до набережной и Центральной площади. Рядом вся необходимая инфраструктура. Остановка общественного транспорта "магазин "Океан". Кафе, магазины и все необходимые сервисы — на 1 этаже. Сервисы отеля у вас дома — при покупке недвижимости в домах UDS получаете в подарок 6 месяцев сервиса: масштабная уборка после ремонта, генеральная и регулярная поддерживающая уборка, химчистка мебели, мойка окон. Наслаждайтесь жизнью в новой квартире с первого дня и не думайте о бытовых вопросах. Эксклюзивная квартира в Ижевске с вашей личной террасой: • 21,15 м² терраса с ограждением и покрытием из террасной доски приватное место для отдыха в городе и встреч с друзьями • Просторная кухня-гостиная 21,81 м² с выходом на террасу • Спальня 10,57 м² с большим окном и видом во двор. • Ниша для шкафа в прихожей Ключи — сразу. Дом сдан. Приглашаем на экскурсию. Специальные условия покупки от UDS: • Трейд-ин — обменяем вашу квартиру на новую. • Банковские программы — рассчитаем на месте. Звоните, пишите — поможем подобрать оптимальные условия. ЖК "Пять континентов" — для жизни и инвестиций. Жильё в центре — ликвид, с которым вы всегда в плюсе.



244 217 ₽/м²
Лучший жилой небоскреб. Самый высокий дом в Ижевске, который видно даже с самолета. OCEAN CITY (ЖК Оушен сити) - для тех, кто хочет жить на высоте и ценит статус. Панорамные виды из окон, которые будут всегда с вами. Неземной двор на высоте 8 метров - эксклюзивная приватная территория только для резидентов OCEAN CITY (ЖК Оушен сити). Зоны отдыха, дизайнерские детские площадки, open-air тренажеры. 10 000 м² пешеходного бульвара "ОКЕАН" — стильное продолжение вашего пространства. Вечерние променады, уютные кафе, живая атмосфера — дорога домой превратиться в удовольствие. Бутиковый ритейл у вас под ногами — кофейни, рестораны, spa-салоны, премиальные магазины. На массаж и за кофе в тапочках, не выходя на улицу. Технологии комфорта нового поколения: Бесключевой доступ — дом распознаёт вас автоматически. Премиальные высокоскоростные лифты с увеличенными потолками — перемещения в стиле CITY. Свободные планировки — воплотите любую дизайн концепцию без границ. Панорамное остекление с интегрированным климат-контролем — идеальный микроклимат без компромиссов. Тёплый подземный паркинг 24/7 — ваш автомобиль в безопасности в любое время года. Инвестиция в престижную недвижимость — OCEAN CITY (ЖК ОКЕАН сити) не просто жильё, а актив, который будет расти в цене.



115 660 ₽/м²
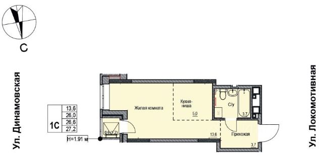
Продаётся 1-комнатная квартира в строящемся доме (Дом 1), срок сдачи: II-кв. 2027, общей площадью 26.6 кв.м., на 4 этаже. ЖК "Локомотив" - это жилой комплекс, состоящий из трех домов, объединенных стилобатом. Удобное расположение, 15 минут до центра.



124 492 ₽/м²
Уютная двухкомнатная квартира в 17-этажной секции ЖК "Речной парк" дом 2 - просторная кухня более 10 м2 и 2 отдельные комнаты. В гостиной есть ниша под вместительный гардероб - это позволит не перегружать пространство массивной мебелью. Из гостиной можно выйти на теплую лоджию. Все помещения правильной геометрической формы, без лишних углов и выступов. Окна выходят на восток. В коридоре есть ниша для вместительного шкафа под верхнюю и сезонную одежду и обувь. Грязная зона прихожей отделена от жилой части - вы будете тратить меньше времени на уборку. Есть отдельная хозяественная комната, в которой можно разместить стиральную машину, хранить пылесос, сушилку для белья, гладильную доску, габаритные и сезонные вещи. Квартира светлая - увеличенные оконные проемы, уровень подоконника 60 см от пола, высота окна 1,7 м.



114 742 ₽/м²
ЖК "Малиновка" — современный 17-этажный трёхсекционный жилой комплекс стандарт-класса. Дом расположен в Ленинском районе города — в окружении тишины и спокойствия. А рядом расположен сквер с прудом, где найдётся место для семейных прогулок и отдыха. Проект гармонично соединяет преимущества умиротворённой жизни с городской инфраструктурой. Расположен в самом сердце живого и обустроенного микрорайона "Малиновая гора", на пересечении улиц Джамбула и Шабердинского тракта. В основу архитектурной концепции лёг образ маленькой изящной птички — зарянки, ставшей символом тепла, домашнего уюта и утреннего света. Широкий выбор планировок — от компактных и экономичных студий до просторных квартир для большой семьи — ваше идеальное пространство для семейной истории, которая начинается с тёплого и светлого гнёздышка в ЖК Малиновка.



| 🔷 Средняя цена продажи: | 5,5 млн ₽ |
| 🔷 Средняя цена за м2: | 133,2 тыс. ₽/м² |
| 🔷 Минимальная стоимость: | 4 млн ₽ |
| 🔷 Самый дорогой объект: | 8,7 млн ₽ |