


116 103 ₽/м²
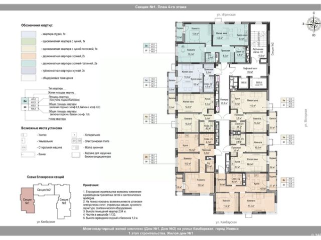
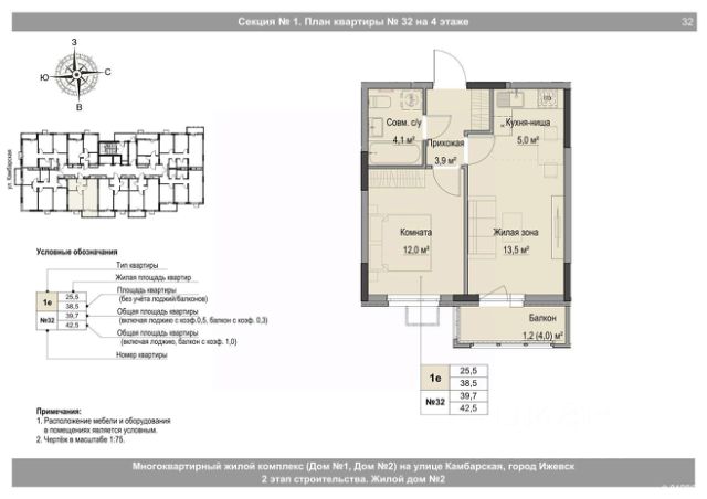
Добро пожаловать в мир утонченной элегантности и современного комфорта — жилой комплекс "Персона". Этот новый 17-этажный дом с двумя секциями стал воплощением гармонии архитектуры и стиля. Фасад оформлен в изысканных оттенках белого и серого, привлекает внимание строгими геометрическими линиями и лаконичными формами. Колонны, обрамляющие остекление, подчеркивают статусность и респектабельность комплекса, создавая атмосферу безупречного вкуса. На первом этаже расположена торговая галерея. Для удобства жителей предусмотрены наземный паркинг, а также индивидуальные кладовые помещения. • Всего 169 квартир • 4-6 квартир на этаже • Закрытая придомовая территория • Квартиры с увеличенной площадью • Двухуровневые квартиры с высотой потолков 5,7м • Панорамные окна • Дизайнерские холлы • Развитая инфраструктура •••••••••••••••••• Способы покупки: — 100% оплата собственными средствами. — Ипотека от ведущих банков. — Материнский капитал можно использовать как первоначальный взнос самостоятельно или в том числе с собственными средствами для покупки квартиры в строящемся доме. •••••••••••••••••• Срок сдачи: 3 квартал 2026 г.














































































































