


162 066 ₽/м²
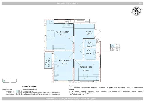
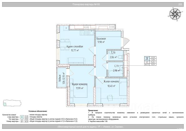
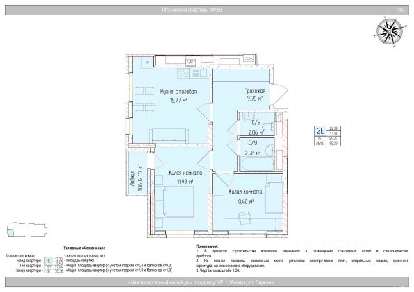
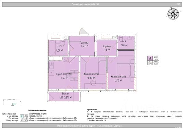
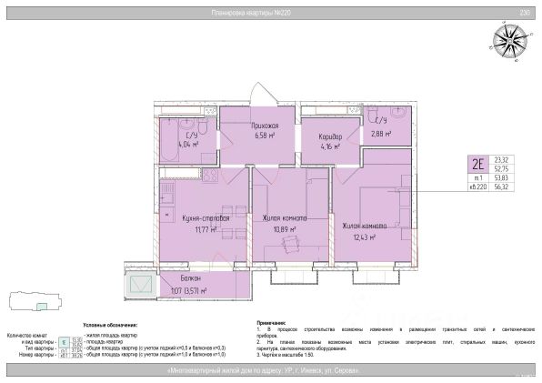
Восьмой дом-квартал состоит из четырех корпусов, расположенных на стилобате — общем первом этаже дома, на котором располагается двор. Внутри стилобата — двухуровневый паркинг, кладовые и коммерческие помещения. Каждый корпус имеет свой характер. Совсем как люди, которые будут жить в них. Архитектура вдохновлена природой. Кирпич спокойных природных оттенков в сочетании с яркими цветными рамами и корзинами для кондиционеров поддерживает архитектурную идею — сдержанность и эмоциональность одновременно. Каждый корпус имеет свой цвет, форму и фактурные элементы, которые выполняются за счет разной укладки кирпича. Планировки в Восьмом доме-квартале создавались так, чтобы места хватило всем, даже если со временем семья станет больше. Поэтому здесь нет студий и классических однокомнатных квартир. Зато есть двухуровневые квартиры и квартиры с антресолью. Полезное пространство сохранено для жизни — предусмотрены ниши под шкафы, кладовые, а коридоры занимают не более 4-5% от площади. В квартирах будет светло и уютно до позднего вечера за счет увеличенных оконных проемов и двух окон в комнатах. А для тех, кто хотел бы стереть границы между городом и природой, есть квартиры с террасой.
















































































