


183 286 ₽/м²
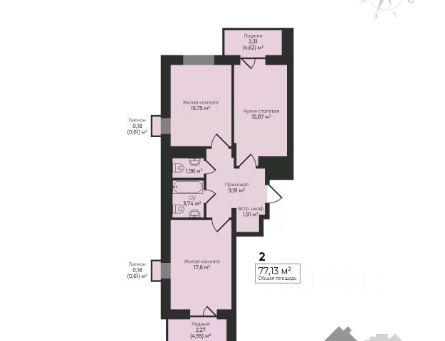
Бизнес-класс на ул. Кирова. Воплощайте мечты о доме в бульварном квартале "Пять континентов". Здесь вы сможете жить в центре Ижевска в эстетичном современном пространстве. Дома комплекса спроектированы по европейским тенденциям международным архитектурным бюро MLA+. Здесь общественные городские и частные зоны разделены не привычными заборами, а гармонично соседствуют друг с другом. Вдоль домов "Пяти континентов" пройдет городской пешеходный бульвар и станет новым маршрутом прогулок и отдыха. Бульвар начнется со сквера на пересечении улиц Кирова и Карла Маркса. И уже сейчас часть сквера построена, приходите и оцените вживую. Если вы хотите жить в невысотном доме в спокойной обстановке, то в "Пяти континентах" вам подойдут уютные дома с эркерами и лоджиями высотой всего 6, 7 и 9 этажей. А если нравятся высотные дома, то в "Пяти континентах" вы увидите и высотные секции внутри квартала высотой 12 и 17 этажей. Ездить на автомобиле ежедневно или добираться пешком жителям "Пяти континентах" удобно одинаково. В комплексе есть подземный паркинг, и, в целом, он выгодно расположен на пересечении улиц Кирова и Карла Маркса, рядом с остановкой "Магазин "Океан". В 15 минутах хотьбы - Центральная площадь и набережная. Здания комплекса примыкают друг другу торцами и создают единую архитектурную форму. Дома по обе стороны бульвара задают направление для прогулок, а волнообразный рисунок брусчатки и плавные изгибы делают бульвар похожим на русло реки. Каждый дом комплекса отличается от другого этажностью, формой, цветом, геометрией фасада. • 6-17 этажей высота домов, • Всего 5 квартир на этаже, • На -1 этаже подземный паркинг, • Высота потолка 2,7 м, • Сквозной вход в дом с улицы и со двора, • Огороженный двор без машин. Передача ключей 1 квартал 2028 года. Продам квартиру с отделкой от застройщика в Ижевске.
























































































































































































