


235 000 ₽/м²
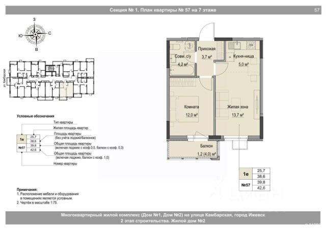
Продаётся студия в строящемся доме (Дом 2), срок сдачи: IV-кв. 2027, общей площадью 40.2 кв.м., на 5 этаже. Объявление от застройщика КОМОССТРОЙ. Покупка защищена ФЗ 214 с использованием эскроу счетов. Жилой комплекс расположен в самом центре Ижевска, на улице К. Маркса, ниже Центральной площади, вдоль эспланады, соединяющей площадь с монументом Дружбы народов и Набережной Ижевского Пруда. Благодаря выгодному расположению на вершине холма, практически из всех квартир комплекса будут открываться потрясающие виды на монумент Дружбы народов, Ижевский Пруд, Михаило-Архангельский кафедральный собор и Центральную Площадь города Ижевска. В шаговой доступности от комплекса расположены десятки детских садов, общеобразовательные средние школы, Удмуртский Государственный Университет, Медицинская Академия, спортивные клубы, магазины, офисы ведущих предприятий города, Госсовет Удмуртской Республики и Дворец Главы Удмуртской Республики. Жилой комплекс представляет собой два жилых многоэтажных дома, расположенных на едином стилобате. В стилобате будут расположены: двухуровневый подземный паркинг, спортивный клуб с бассейном, офисные и торговые помещения. В спортивный клуб и в паркинг жильцы дома смогут спуститься прямо со своего этажа, не выходя на улицу. Квартира: Квартиры передаем собственникам со свободной планировкой. Внутриквартирные перегородки выполняем только для санузлов. Благодаря увеличенным пролетам между несущими конструкциями здания, 7,5 - 9,0 м, вы сможете реализовать в своей квартире практически любой дизайн-проект. Устанавливаем надежные противопожарные металлические входные двери размером 2,1 на 1,0 м. В связи с тем, что квартира передается со свободной планировкой, прокладку электросетей выполняем только до осветительных приборов в санузлах и коридоре. На входе в квартиру устанавливаем электрическую розетку, на кухне - клеммную коробку для подключения электроплиты. Вода и отопление подаются с единого распределительного узла, расположенного за пределами квартиры. Проводить поверки и снимать показания счетчиков управляющая компания сможет без доступа в вашу квартиру. Для каждой квартиры предусмотрено место для установки внешнего блока кондиционеров в зоне переходной лоджии. В конструкцию стен коридоров заложен канал для прокладки коммуникаций от внешнего блока до квартиры. Умный дом: Специально для будущих жителей Республики мы собрали все самые полезные и актуальные функции "Умного Дома": - Бесключевой доступ на территорию двора, парковку и в квартиру. - Умный шлагбаум с функцией пропускного контроля. - Видеодомофон и видеонаблюдение. - Контроль задымления и протечек. - Автоматизированный сбор и передача показаний счётчиков. - Управление питанием и системой отопления. - Дистанционное управление открывания оконных створок. Все вопросы можно уточнить в отделе продаж по телефону. Звоните! Купить квартиру-студию площадью примерно 40 м2 (кв.м.) в Ижевске.

























































































