


141 779 ₽/м²
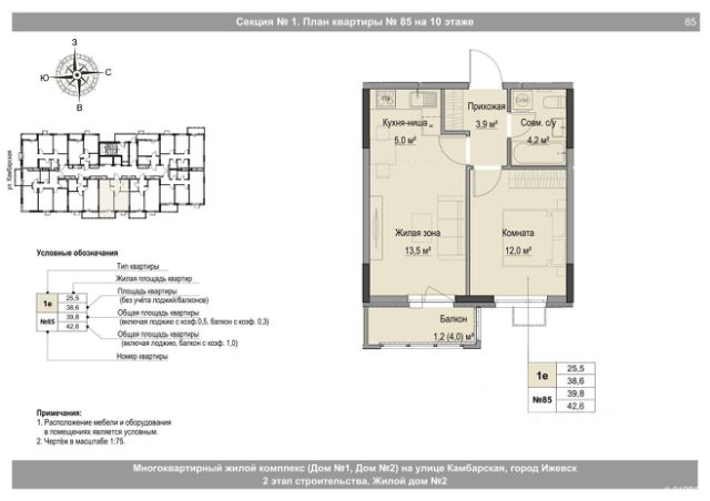
Продаётся студия в строящемся доме (Дом 6), срок сдачи: I-кв. 2029, общей площадью 24.4 кв.м., на 4 этаже. Квартира от застройщика КОМОССТРОЙ. Покупка защищена ФЗ 214 с использованием эскроу счетов. "Умные кварталы А14" - новый микрорайон комплексной застройки на улице Камбарской, вдоль живописной хвойной аллеи, вблизи гипермаркета Леруа Мерлен. План развития микрорайона включает новую общеобразовательную школу и 2 детских сада на 105 и 200 мест каждый. Рядом расположены: школа 74, детские сады 278 и 280, медцентр Академия Здоровья, гипермаркеты Леруа Мерлен и Лента, спортивный комплекс Байкал. Помимо школы и двух детских садов на территории микрорайона запроектировано размещение нескольких зон отдыха: ботанической аллеи, множества велодорожек, пикник-парка с беседками и собственным прудом, АRT-пространства с дизайнерской аркой и подсветкой из множества гирлянд. На первых этажах размещаем просторные колясочные. Вы сможете оставить коляску, велосипед или электросамокат на первом этаже, не поднимая их до своей квартиры, и они не будут занимать место в вашей прихожей или кладовке. В колясочных предусмотрены поддоны для мытья колес велосипедов и детских колясок, а также лап ваших домашних питомцев. Перед входами в подъезды предусмотрены велопарковки. Из окон А14 будут открываться замечательные виды на пойму реки Позимь, лес микрорайона "Ракетный". Квартира: Большинство квартир запроектировано в современных СМАРТ-планировках, с большими кухнями-столовыми и уютными спальнями, где каждый квадратный метр продуман до мелочей! Предусмотрена периметральная поквартирная разводка труб отопления в конструкции пола. Мы выполняем все капитальные и грязные работы до передачи квартиры собственнику. Стены подготавливаем под оклейку обоями. На полу выполняем полусухую стяжку со звукоизолирующим слоем. Устанавливаем надежные металлические входные двери с тепло- и звукоизоляцией. Выполняем прокладку электросетей, устанавливаем электросчетчики, одну розетку и один выключатель в прихожей. По проекту, водопровод и канализацию заводим в помещение с установкой заглушек, устанавливаем счётчики воды. Окна выполняем с повышенной площадью остекления, высота подоконников - 0,72 м. Устанавливаем оконные конструкции с повышенными тепло- и звукоизоляционными свойствами. Применяем ПВХ профили с повышенными теплоизоляционными свойствами и двухкамерные стеклопакеты. По дополнительному соглашению мы можем выполнить в вашей квартире чистовую отделку по нашему типовому проекту. Умный дом: В микрорайоне "Умные кварталы А14" мы реализовали новый, расширенный пакет системы Умный Дом. Это целый перечень оборудования, объединенного в единый сервис, функциями которого можно управлять удалённо, прямо с вашего смартфона Квартира-студия от застройщика в районе Первомайский в городе Ижевск.




















































































































































