Мы используем куки-файлы. Соглашение об использовании
Помещение свободного назначения, 646 м²

Сдается помещение свободного назначения, 646 м²

Площадь646 м²
Этаж1 из 2
ПомещениеСвободно
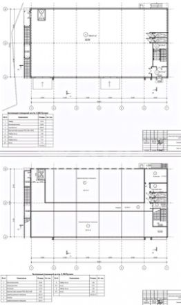
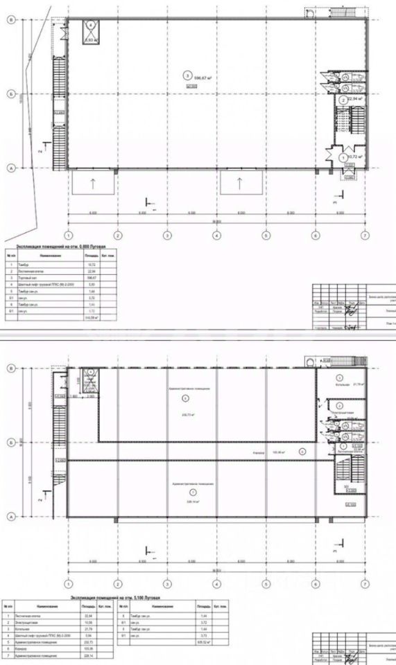
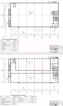
Сдается в аренду отдельно стоящее здание, новый торгово-офисный центр на Маяковке, фактический адрес: улица малая луговая. Своя асфальтированная парковка. Общая квадратура двух этажей 1282 кв. м. Первый этаж 2 санузла, один зал общей площадью 597 кв. м. Имеется грузовой лифт. Цена аренды 1 этажа 1000 руб. Второй этаж состоит из двух больших административных площадей 232,73 кв. и 228.14 кв. м., 2 санузла. Своя котельная, электрощитовая. Второй этаж сдается по 500 руб. кв. м. Панорамные окна. Ввод в эксплуатацию лето 2025 г, бронируем сейчас. Характеристики: - 1 линия - Отдельная входная группа - Своя парковка - Есть возможность разместить вывеску - Доступ по общему графику - ХВС/ГВС - Свой санузел - Вентиляция отсутствует - Максимальная мощность 150 кВт - Чистовой ремонт - Отдельно стоящее здание - Высота потолков 5.1 м - С окнами - Возможность перепланировки - Коммунальные услуги оплачиваются отдельно По всем вопросам можете обращаться к представителю собственника: Анжелика
lock

Войдите или зарегистрируйтесь
для просмотра информации

Просматривайте условия сделки и всю информацию об объекте
Сохраняйте фильтры в поиске и не вводите заново
Доступ к избранному с любого устройства
Неограниченное добавление в избранное
Позвоните автору
Вам ответят на все вопросы
Остались вопросы по объявлению?
Позвоните владельцу объявления и уточните необходимую информацию.
  • Инфраструктура
  • Похожие рядом
  • Общая площадь646 м²
Помощь надёжных риелторов
Риелтор партнёр Циан поможет купить или продать любую недвижимость
Документы проверены
646 000 ₽/мес.
8 490 $/мес.
7 225 /мес.
Цена за метр
12 000 ₽ в год
Налог
УСН
Комиссия
нет
Коммунальные платежи
не включены
Эксплуатационные расходы
не включены
Агентство недвижимости
Документы проверены
На Циан
7 лет
Объектов в работе
более 1000