Мы используем куки-файлы. Соглашение об использовании
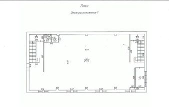
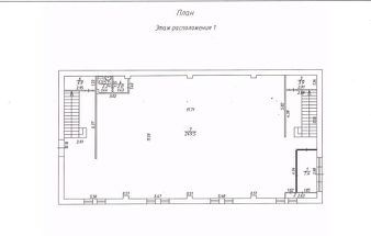
Помещение свободного назначения, 220 м²

Сдается помещение свободного назначения, 220 м²

Площадь220 м²
Этаж1 из 1
ПомещениеСвободно
Характеристики: - 2 линия - Отдельная входная группа - Общая парковка - Есть возможность разместить вывеску - Погрузка/разгрузка: Запасной вход - Доступ 24/7 - Есть кондиционер - Максимальная мощность 100 кВт - Требует косметического ремонта - Отдельно стоящее здание - Имеется запасной выход - Без лифта - Высота потолков 3.2 м - С окнами - Возможность перепланировки - Коммунальные услуги оплачиваются отдельно АРР1 По всем вопросам можете обращаться к представителю собственника: Алексей
lock

Войдите или зарегистрируйтесь
для просмотра информации

Просматривайте условия сделки и всю информацию об объекте
Сохраняйте фильтры в поиске и не вводите заново
Доступ к избранному с любого устройства
Неограниченное добавление в избранное
Позвоните автору
Вам ответят на все вопросы
Остались вопросы по объявлению?
Позвоните владельцу объявления и уточните необходимую информацию.
  • Инфраструктура
  • Похожие рядом
  • Общая площадь220 м²
Помощь надёжных риелторов
Риелтор партнёр Циан поможет купить или продать любую недвижимость
Документы проверены
198 000 ₽/мес.
2 655 $/мес.
2 256 /мес.
Цена за метр
10 800 ₽ в год
Налог
УСН
Комиссия
нет
Коммунальные платежи
не включены
Эксплуатационные расходы
не включены
Агентство недвижимости
Документы проверены
На Циан
7 лет
Объектов в работе
более 1000