Мы используем куки-файлы. Соглашение об использовании

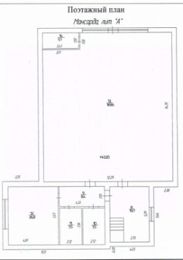
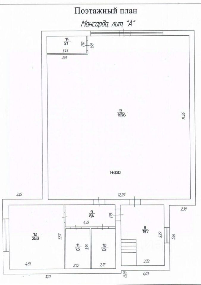
Продается арендный бизнес, 484 м²

Площадь484 м²
Этаж1
Прибыль120 000 ₽/мес.
Характеристики: - 1 линия - Отдельная входная группа - Общая парковка - Есть возможность разместить вывеску - Погрузка/разгрузка: Главный вход, Запасной вход, Отдельное окно - Доступ 24/7 - ХВС/ГВС - Свой санузел - Автономное отопление - Приточно-вытяжная вентиляция - Есть кондиционер - Максимальная мощность 59 кВт - Хороший ремонт - Отдельно стоящее здание - Имеется запасной выход - Без лифта - Высота потолков 4 м - С окнами - Возможность перепланировки - Видеонаблюдение - Коммунальные услуги оплачиваются отдельно Дополнительная информация: ГАБ с арендаторами швейный цех и хостел готово к продаже! Если вы рассматриваете покупку в качестве инвестиций, то это отличное вложение денег! Срок окупаемости всего 5 лет! Сейчас такого на рынке просто нет! Помещение разделено на 2 этажа, имеется склад, 2 санузла, своя газовая котельная, отдельные кабинеты, зона для курения, 4 отдельных входа. Арендаторы стабильные, надежные. Здание 2019 года постройки, построено по всем требованиям. Звоните, пишите, обо всем договоримся! По всем вопросам можете обращаться к представителю собственника: Антонина
lock

Войдите или зарегистрируйтесь
для просмотра информации

Просматривайте условия сделки и всю информацию об объекте
Сохраняйте фильтры в поиске и не вводите заново
Доступ к избранному с любого устройства
Неограниченное добавление в избранное
Позвоните автору
Вам ответят на все вопросы
Остались вопросы по объявлению?
Позвоните владельцу объявления и уточните необходимую информацию.
  • Инфраструктура
  • Похожие рядом
Помощь надёжных риелторов
Риелтор партнёр Циан поможет купить или продать любую недвижимость
Документы проверены
13 900 000 ₽
186 275 $
158 153
Цена за метр
28 720 ₽
Налог
УСН
Агентство недвижимости
Документы проверены
На Циан
7 лет
Объектов в работе
988