От года, комм. платежи включены (без счётчиков), без комиссии, залог 15 000 ₽
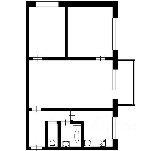
Сдаётся уютная 2-комнатная квартира общей площадью 49.8 кв.м в доме 1988 года постройки. Квартира расположена на 4 этаже 16-этажного блочного здания. Высокие потолки — 2.8 метра, создают ощущение простора. Жилая площадь составляет 28 кв.м, а просторная кухня — 12 кв.м, что прекрасно подойдёт для семейных обедов. В квартире сделан косметический ремонт. На кухне и в комнате есть мебель, что позволяет сразу заселиться без лишних хлопот. Из техники присутствуют холодильник, телевизор и стиральная машина. Планировка включает отдельный санузел и ванную комнату с ванной, а также одну лоджию с видом на улицу, где можно насладиться свежим воздухом. Дом в хорошем состоянии, оборудован как пассажирским, так и грузовым лифтом. Наземная парковка обеспечит удобство для владельцев автомобилей. Также в доме функционирует мусоропровод, поэтому можно быстро избавиться от мусора. Квартира расположена в районе с развитой инфраструктурой. В шаговой доступности находятся школы, детские сады и клиники, что особенно важно для семей с детьми. Рядом также расположены магазины, где можно приобрести всё необходимое для комфортного проживания. Условия аренды: договор аренды напрямую от собственника. Возможность долгосрочной аренды, без комиссий и обременений. Залог обсуждается при просмотре. Квартира идеально подойдёт для проживания семьи или пары. Приезжайте на просмотр и убедитесь в преимуществах этой квартиры! Записывайтесь на удобное для вас время, будем рады показать вам ваш будущий дом. Снять квартиру больше чем на год без посредников в районе Устиновский в городе Ижевск.
























































































