


132 787 ₽/м²
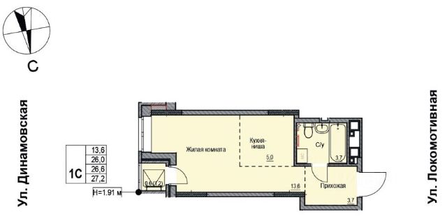
ЖК "Соседи". Жилой дом 3. DRG GRUPP представляет третий дом жилого комплекса "Соседи" — не просто жилье, а стиль жизни для тех, кто ценит уют и комфорт. 17-ти этажный жилой комплекс будет расположен на улице Леваневского, в Ленинском районе — в шаговой доступности от развитой инфраструктуры, и вдали от городской суеты. Фасад, который рассказывает историю: Здесь каждая деталь — от фасада до внутреннего двора — говорит о вкусе и вниманию к деталям. "Мокрый фасад", навесные панели и художественная кирпичная кладка в духе старой Европы идеально продолжат концепцию всего жилого комплекса. Двор, где хочется остаться: Двор жилого комплекса расположен на едином стилобате и соединён со двором второго дома — мы создали единое, закрытое и безопасное пространство для жизни и отдыха. Единая придомовая территория предполагает под собой: Зону отдыха для взрослых — с изысканной перголой и амфитеатром для встреч, книг и вечерних разговоров; Игровую зону для малышей — безопасную и уютную; Спортивную зону для самых активных жителей комплекса, где можно играть в баскетбол или заниматься на уличных тренажерах. Квартиры под ваш ритм жизни: В жилом комплексе предусмотрены разные форматы квартир: от уютных студий для одного до просторных евро-трехкомнатных квартир для больших семей. Каждый найдёт тот самый формат, который подходит именно ему. Холл: Холл третьего дома — это не просто подъезд, это общественное пространство, разработанное в единой концепции со всем жилым комплексом. Это атмосфера тепла, уюта и статуса, где каждая деталь продумана до мелочей. Вы — не просто житель дома. Вы — часть истории "Соседей". Функциональность без компромиссов: - Удобные кладовые на первом этаже - разместите в них сезонные вещи, инструменты, инвентарь и бытовую технику; - Наземный крытый паркинг — ваш автомобиль всегда под защитой; - Автономная газовая котельная экономия на коммунальных платежах и горячая вода круглый год; - Видеонаблюдение и ограждённая территория — безопасность как стандарт. Срок сдачи — 4 квартал 2027 года










































































